EasyManua.ls Logo

AMF-BRUNS K90 ACTIVE - Electrical Circuit Diagram K90 ACTIVE

Default Icon
100 pages
Print Icon
To Next Page IconTo Next Page
To Next Page IconTo Next Page
To Previous Page IconTo Previous Page
To Previous Page IconTo Previous Page
Loading...
Electrical Circuit Diagrams
Back-in-Box-Lift K70 / K90 / K90 ACTIVE Page 93 of 100
11.5 Electrical Circuit Diagram K90 ACTIVE
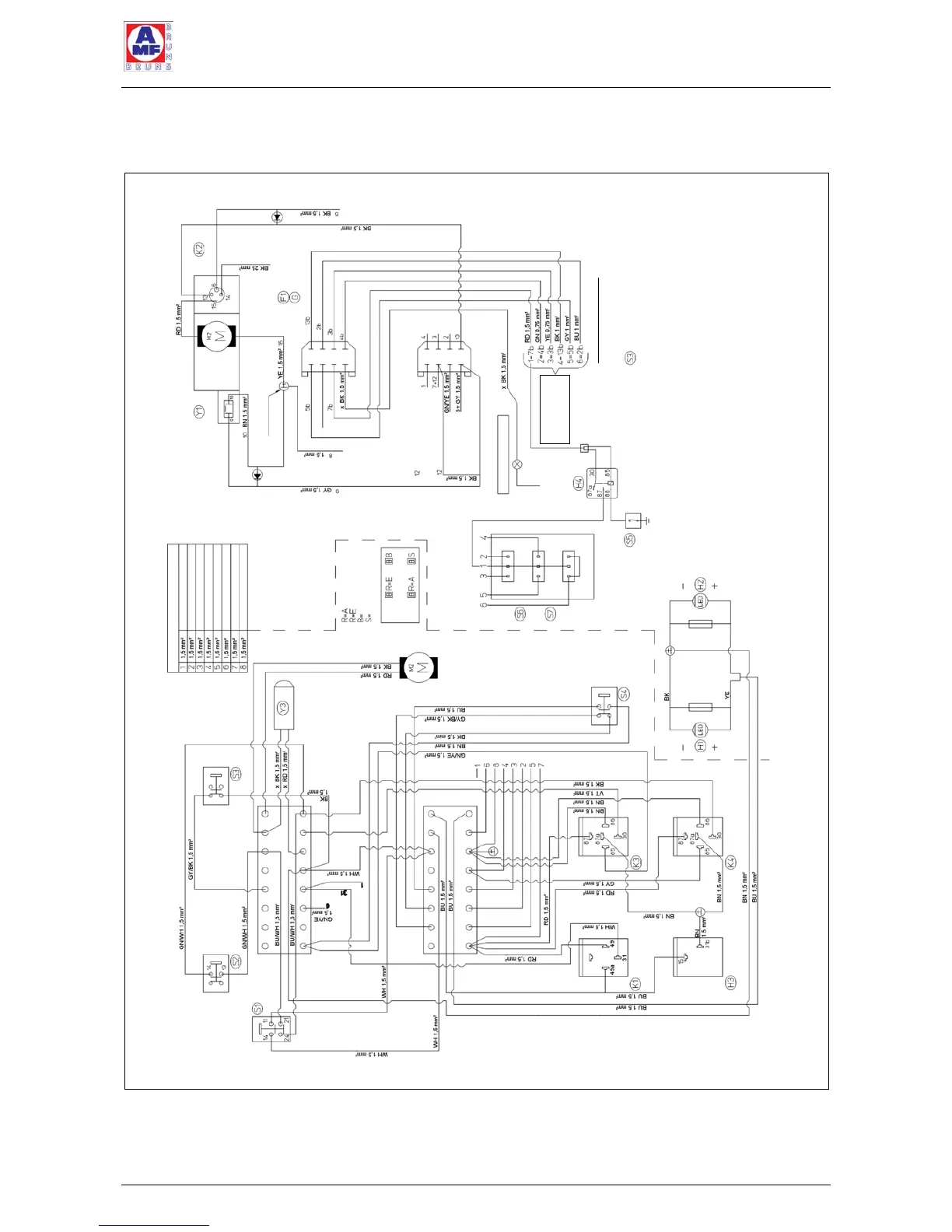
Figure 59: Electrical Circuit Diagram K90 ACTIVE
A cable
harness to the
manual switches
Branch
connection
Door open: Door contact switch closed
Door closed: Door contact switch open
Door contact
switch
Retract Extend
Raise Lower
Mid-position
Manual switches
Internal carriage cable
harness
Indicator lamp
Mid-position
Retract
Extend
Lower
Raise
Current
Earth
Raise
Enable
Solenoid
Kissling switch
PB1101310987
Retract
Solenoid
XCKP2121P16
Blinker
Indicator lamp
XCMN2102L1
Distributor 2
Solenoid
Distributor 1
Blinker
transmitter
Changeover
relay Retract
Changeover
relay Extend
Buzzer
Blinker BN 1.5 mm² connected to No. 8 at a connection point
marked with x
2x1.5 mm² double-sheathed
can contain
BK/RD or BK/GY
Extend relay
Retract relay
Blinker
Buzzer
Blocking
diode
Mid-position
Retract
Enable
XCMN2102L1
Lowering valve
Hydraulic
aggregate
Contactor
Earth on the
pump housing
via
Main fuse 100A
to the battery
Control fuse 40A
via battery fuse
ATTENTION: Use the
same fuse!
Cable indicator lamp
1x1.5
double-sheathed
to the cable indicatorlamp:
Switched earth (-)
comes from the lift:
Lift retracted = no
Lift extends = - switched
on the pump
Spade connectors
male
White cable
Spade connectors female

Table of Contents

Related product manuals