EasyManua.ls Logo

Buell X1 2002 - Page 310

Buell X1 2002
462 pages
Print Icon
To Next Page IconTo Next Page
To Next Page IconTo Next Page
To Previous Page IconTo Previous Page
To Previous Page IconTo Previous Page
Loading...
4-92 2002 Buell X1: Fuel System
HOME
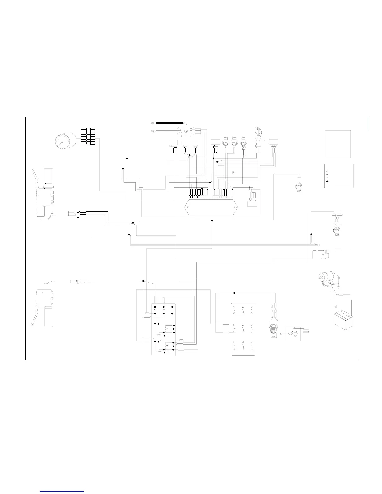
Figure 4-73. Ignition and Starting System Circuit
S16
S12
S13
FRONT SPARK
PLUG
REAR SPARK
PLUG
ABC
FR
1
GRAY CONNECTORBLACK CONNECTOR
ELECTRONIC CONTROL MODULE
GY
BK 1
BN/Y
BK/Y
W/Y
23456789101112 12 3456789101112
GN/GY
-
BK 1
PK
R/W
V/Y
GN/W
V/GY
-
BK/W
PK/Y
V/R
LTGN/Y
LTGN/R
FRONT
FUEL
INJ
REAR
FUEL
INJ
12 12
BN/Y
GY
GY
W/Y
GY
GN/GY
GN/W
R/W BK/W
ABC
ENGINE
TEMP
SENSOR
OXYGEN
SENSOR
AIR
TEMP
SENSOR
1
2
TP
SENSOR
R/W
V/Y
B/W
ABC
GY
V/GY
PK/Y
LTGN/Y
BK/W
R/W
GN/W
BK/W
-
123 4
DATA
LINK
LTGN/R
V/R
GY
TN
SWITCH
NEUTRAL
S10
ABCD
FUEL
PUMP
BK 1
S17
ABC
GY
LTGN/GY
LTGN/GY
IGN
GND
S20
S21
BK 3
BK 3
BE/O
Y/BE
Y/BE
BE/O
BANK
ANGLE
SENSOR
[86] [84]
[85]
[83]
[88]
[89] [14]
[134]
[10]
[11]
[91]
COLOR CODE:
BE BLUE
BK BLACK
BN BROWN
GN GREEN
GY GRAY
O ORANGE
PK PINK
R RED
TN TAN
V VIOLET
W WHITE
Y YELLOW
LT. LIGHT
DIODE
NO CONNECTION
PIN CONNECTOR
SOCKET CONNECTOR
SPLICE CONNECTION
CONNECTOR CODE:
TO GROUND
FROM IGN RLY
BK
1
2
BK
TN/GN
R/BE
S1
[95]
CLUTCH SWITCH
IGN MODULE
FROM (2)
GN/BK
W/R
IGN POWER
BE
[22]
W/BK
W/BK
S8
1
3
2
4
GY/O
/BRK
R
/B
R
R
K
R
/BRK
/RGY
KEY SWITCH
OFF
P
IGN
GY/O
R/BK
BK
S7
IGNITION
15A
15A
15A
ACCESSORY
LIGHTS
15A
INSTRUMENTS
A
B
C
D
MEMORY
SPARE
20A
15A
15A
20A
15A
SPARE
SPARE
SPARE
[33]
[61]
FUSE
BLOCK
TN/W
87A
30 87
85
86
87A
30 87
85
86
GY/O
GY/O
TN/W
TN/W
GY
TN/GN
DIODE 1
DIODE 2
W/BK
TN
TN/GN
[62]
RELAY
BLOCK
S11
R
BATTERY
3
0A
MASTER
CIRCUIT
BREAKER
MAIN CHASSIS GROUND
TN/W
BK
12
SIDESTAND
SWITCH
BK
W
S2
BK 2
BK2
[60]
TACHOMETER
2
3
4
O/W
1
W
O/W
BK
BK
5
6
7
8
9
10
OO
Y/R Y/R
R
--
PK PK
BK/Y
BK/Y
BK
BK
W 1
R

Table of Contents

Related product manuals