EasyManua.ls Logo

Burkert 8035 - Configuring the Relay Output DO3 to Control an Auxiliary Valve; Configuring the Transistor Output DO4 to Transmit the Device State and Activating; Deactivating the Generation of a 10 Hz Frequency When an Error Message Is Generated by the Device

Burkert 8035
140 pages
Print Icon
To Next Page IconTo Next Page
To Next Page IconTo Next Page
To Previous Page IconTo Previous Page
To Previous Page IconTo Previous Page
Loading...
113
Operating and functions
10.7.25 Configuring the relay output DO3 to control an auxiliary
valve
Connect the auxiliary valve (installed into the pipe with low flow rate) to the relay output DO3. See
chap. 8.14.
The time delay before opening the auxiliary valve is the same as the time delay before opening the main
valve.
If no auxiliary valve is necessary, enter a filling rate of 100 in the settings of the relay output DO2.
If the filling rate associated to the relay output DO2 is < 100, the relay output DO3 is automatically configured to
control the auxiliary valve that completes the filling up to 100.
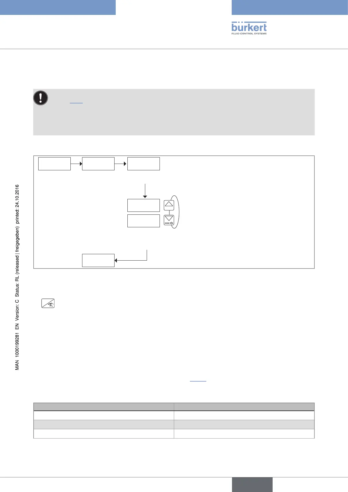
OUtPUt VALVEDO3
DO4
Confirm.
iNV YES
iNV NO
0......9
Choose the operating, inverted or not inverted, of the relay output.
Fig. 86 : Configuring the relay output DO3 to control an auxiliary valve
If you do not want to adjust another parameter, go to the "END" parameter of the Parameters menu and press
ENTER
to save the settings or not and go back to the Process level.
10.7.26 Configuring the transistor output DO4 to transmit the
device state and activating / deactivating the generation of
a 10 Hz frequency when an error message is generated by
the device
The transistor output DO4 can be configured to transmit the device state to a LED or a remote instrument (PLC
for example).
If, furthermore, the device signals an operating error (see chap. 11.3.2), the transistor output DO4 can be con-
figured to generate a 10 Hz-frequency.
The following states are transmitted:
State of the device State of the the transistor output DO4
No dosing being done OFF
Dosing being done ON
Dosing interrupted 1 Hz-frequency
English
Type 8025 - 8035 - SE35 BATCH

Table of Contents

Other manuals for Burkert 8035

Related product manuals