EasyManua.ls Logo

corob D300 - Electrical Diagram

corob D300
122 pages
Print Icon
To Next Page IconTo Next Page
To Next Page IconTo Next Page
To Previous Page IconTo Previous Page
To Previous Page IconTo Previous Page
Loading...
42 6 - Electrical diagram
COROB
TM
D300
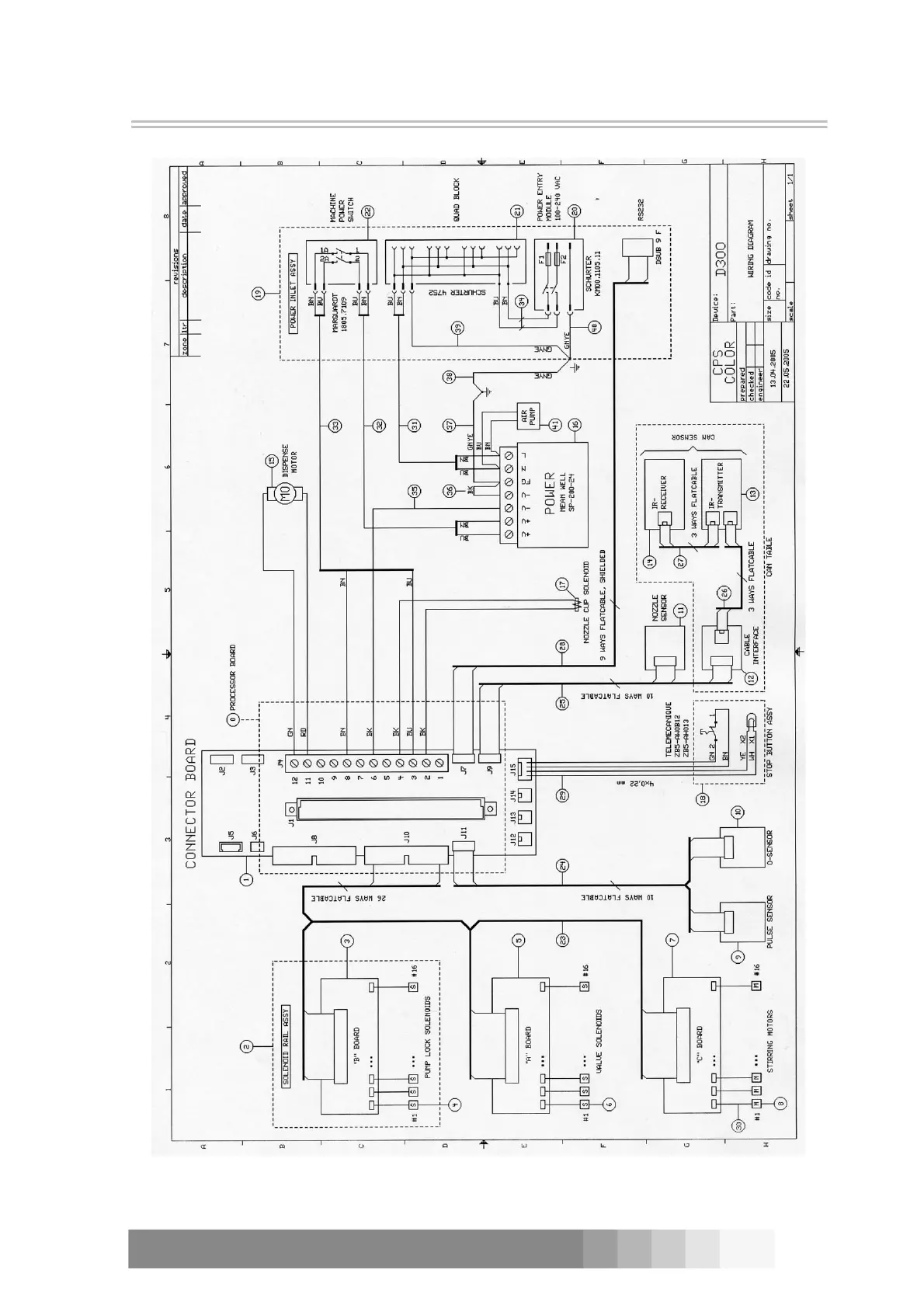
6 ELECTRICAL DIAGRAM
Figure 85: The electrical diagram of the COROB
TM
D300 with sixteen canisters.

Table of Contents

Related product manuals