EasyManua.ls Logo

Danfoss VLT AutomationDrive - Page 177

Danfoss VLT AutomationDrive
281 pages
Print Icon
To Next Page IconTo Next Page
To Next Page IconTo Next Page
To Previous Page IconTo Previous Page
To Previous Page IconTo Previous Page
Loading...
+DC 89
FASTENER TORQUE: M10 19Nm (14 FT -LB)
+DC 89
130BA860.10
1
5
4
3
2
6
8
10
9
7
FUSE
C J3
ONNECT
CH22 CH22 CH22
CTI25MB
FASTENER TORQUE: M10 19Nm (14 FT -LB)
CTI25MB
CH22 CH22 CH22
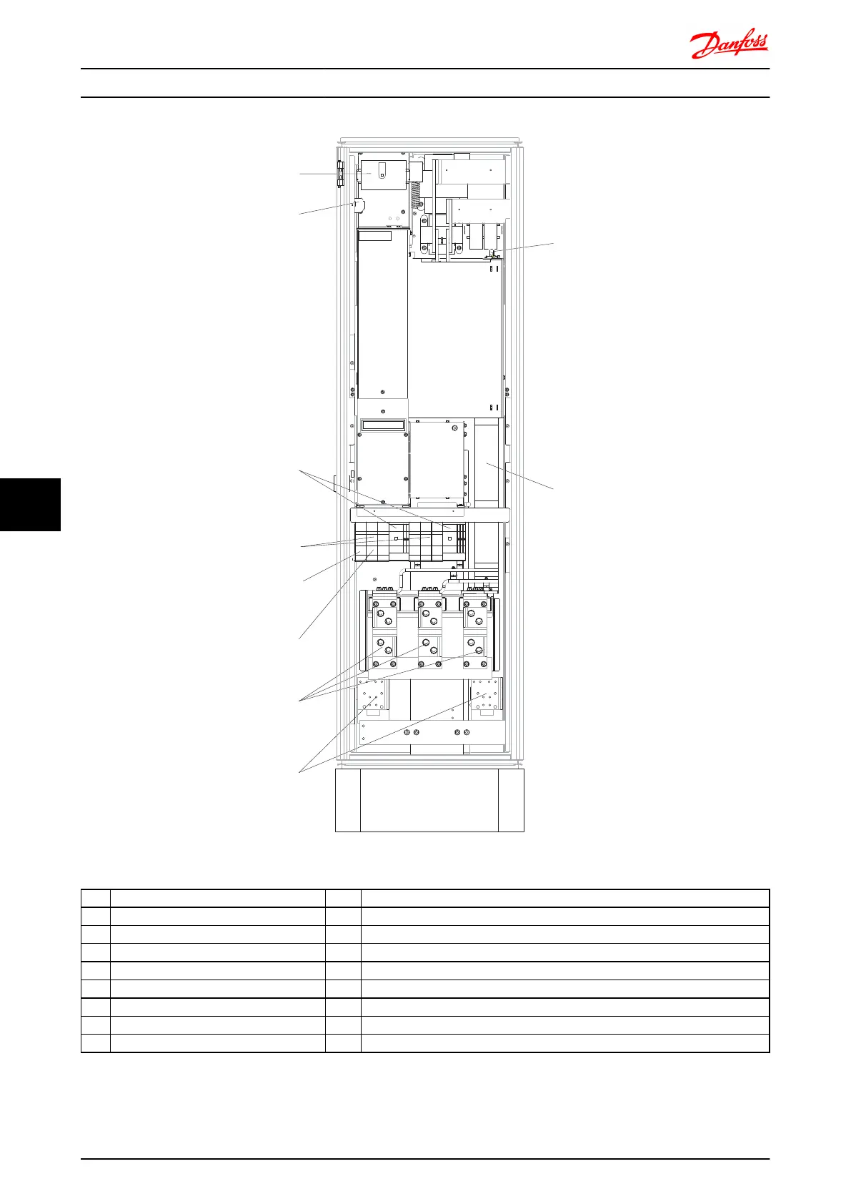
Illustration 8.39 Rectifier Cabinet, frame size F1, F2, F3 and F4
1)
24V DC, 5 A 5) Loadsharing
T1 Output Taps -DC +DC
Temp Switch 88 89
106 104 105 6) Control Transformer Fuses (2 or 4 pieces). See fuse tables for part numbers
2) Manual Motor Starters 7) SMPS Fuse. See fuse tables for part numbers
3) 30 A Fuse Protected Power Terminals 8) Manual Motor Controller fuses (3 or 6 pieces). See fuse tables for part numbers
4) Line 9) Line Fuses, F1 and F2 frame (3 pieces). See fuse tables for part numbers
R S T 10) 30 Amp Fuse Protected Power fuses
L1 L2 L3
Electrical Installation FC 300 Design Guide
176 MG.33.BD.02 - VLT
®
is a registered Danfoss trademark
88

Table of Contents

Other manuals for Danfoss VLT AutomationDrive

Related product manuals