EasyManua.ls Logo

Datacom DM4000 Series - Fan Board; Fan Board Description; Fan Board Air Flow

Datacom DM4000 Series
118 pages
Print Icon
To Next Page IconTo Next Page
To Next Page IconTo Next Page
To Previous Page IconTo Previous Page
To Previous Page IconTo Previous Page
Loading...
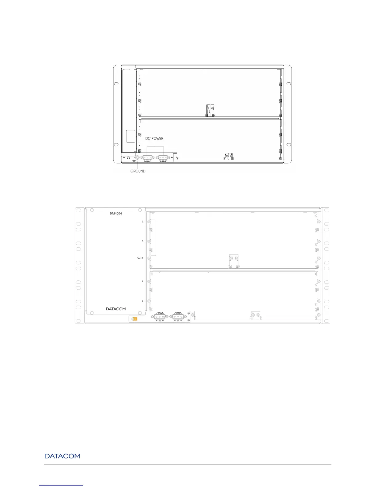
Chapter 5. DM4004 Chassis
Figure 5-3. DM4004 Chassis 19" - Front Panel
Figure 5-4. DM4004 Chassis 23" - Front Panel
5.3. Rear Panel Description
The DM4004 chassis Rear Panel has one console DB9 connector.
19

Table of Contents

Related product manuals