EasyManua.ls Logo

Festo EMCS-ST - Page 50

Festo EMCS-ST
114 pages
Print Icon
To Next Page IconTo Next Page
To Next Page IconTo Next Page
To Previous Page IconTo Previous Page
To Previous Page IconTo Previous Page
Loading...
50
Festo — EMCS-ST — 2021-03b
Drive system
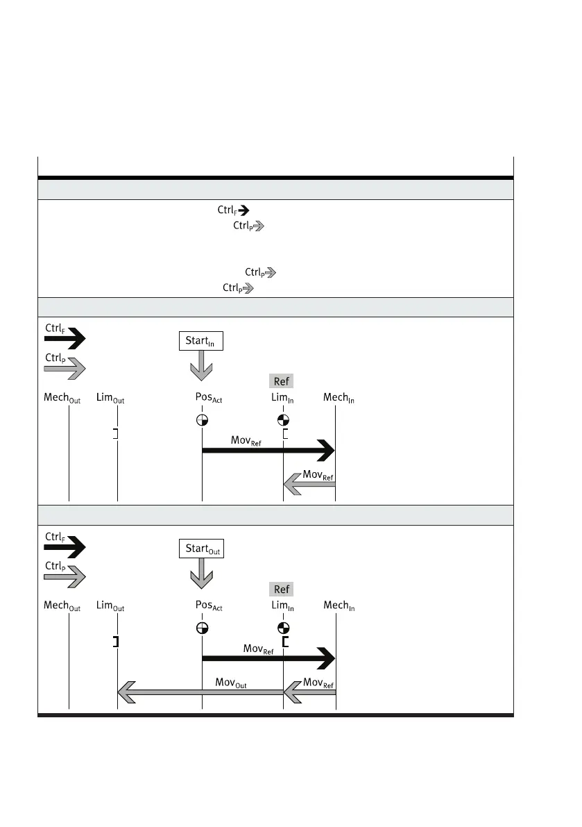
Re-initialise reference end position "Ref"
The homing of the reference end position is lost on Power OFF of the logic voltage L
+
[Logic, Pin 1].
After every restart the position of the reference end position "Ref" is re-initialised at the "Speed Ref"
velocity with the first motion task.
Homing after a restart as a function of the positioning task
Sequence
Mov
Ref
: force-controlled movement against mechanical stop "Mech
In
"
Mov
Out
: position-controlled movement to the reference end position "Ref"
Travel to the target position as a function of the positioning task
No travel, end position "Lim
In
" reached
Mov
Out
: position-controlled movement to the end position Lim
Out
Mov
Imp
: position-controlled travel to the intermediate position Lim
Imp
(IO-Link only)
Start
In
positioning task to the end position Lim
In
Start
Out
positioning task to the end position Lim
Out

Table of Contents

Related product manuals