EasyManua.ls Logo

FULTON Vantage VTG 2000 - Outdoor Reset Configuration

FULTON Vantage VTG 2000
149 pages
Print Icon
To Next Page IconTo Next Page
To Next Page IconTo Next Page
To Previous Page IconTo Previous Page
To Previous Page IconTo Previous Page
Loading...
© The Fulton Companies 2016
INSTALLATION VTG-IOM-2016-1214 SECTION 2
2-26
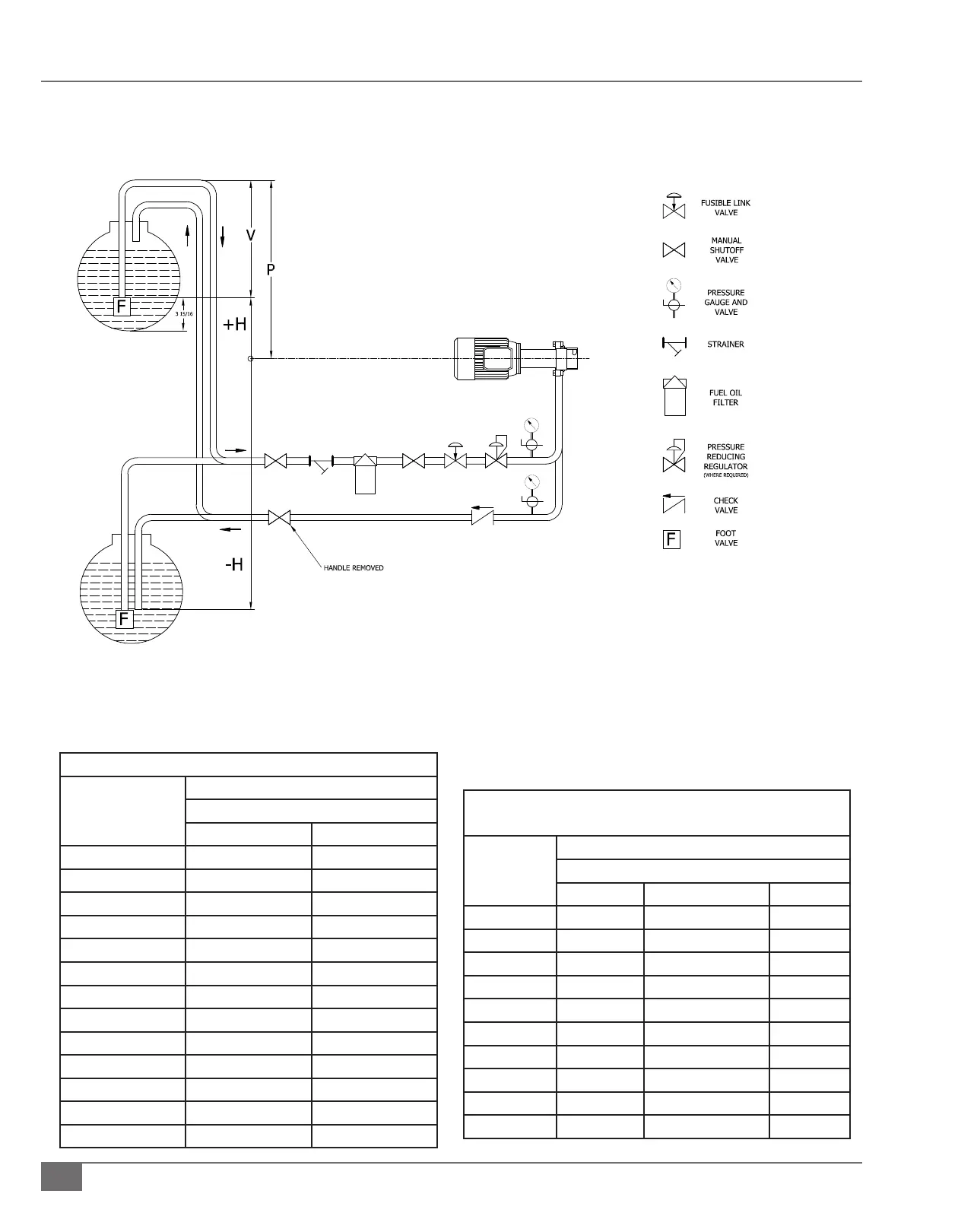
FIGURE 16  FUEL SUPPLY FOR SINGLE BOILER
Figure 16 Symbol Key
RLS-160E (for use with VTG-5000DF/VTG-6000DF)
+H
-H
(ft)
L(ft)
O (inch)
1/2” 5/8”
+13 197 263
+10 164 230
+6.6 132 197
+4.8 115 181
+3.3 99 164
+1.6 82 148
0 66 132
-1.6 59 115
-3.3 49 99
-4.8 43 82
-6.6 33 66
-10 16 33
-13 - 20
RLS-100-130E
(for use with VTG-2000DF to VTG-4000DF)
+H
-H
(ft)
L(ft)
O (inch)
3/8” 1/2” 5/8”
+13 100 210 320
+10 88 180 320
+6.6 75 155 320
+3.3 68 140 320
+1.6 52 110 270
0 45 98 240
-1.6 39 85 200
-3.3 26 55 140
-6.6 19 42 104
-10 - 13 36

Table of Contents

Related product manuals