EasyManua.ls Logo

Huawei FusionModule800 - Page 148

Huawei FusionModule800
298 pages
Print Icon
To Next Page IconTo Next Page
To Next Page IconTo Next Page
To Previous Page IconTo Previous Page
To Previous Page IconTo Previous Page
Loading...
FusionModule800 Smart Small Data Center
Installation Guide (Six Fans)
3 Hardware Installation
Copyright © Huawei Technologies Co., Ltd.
139
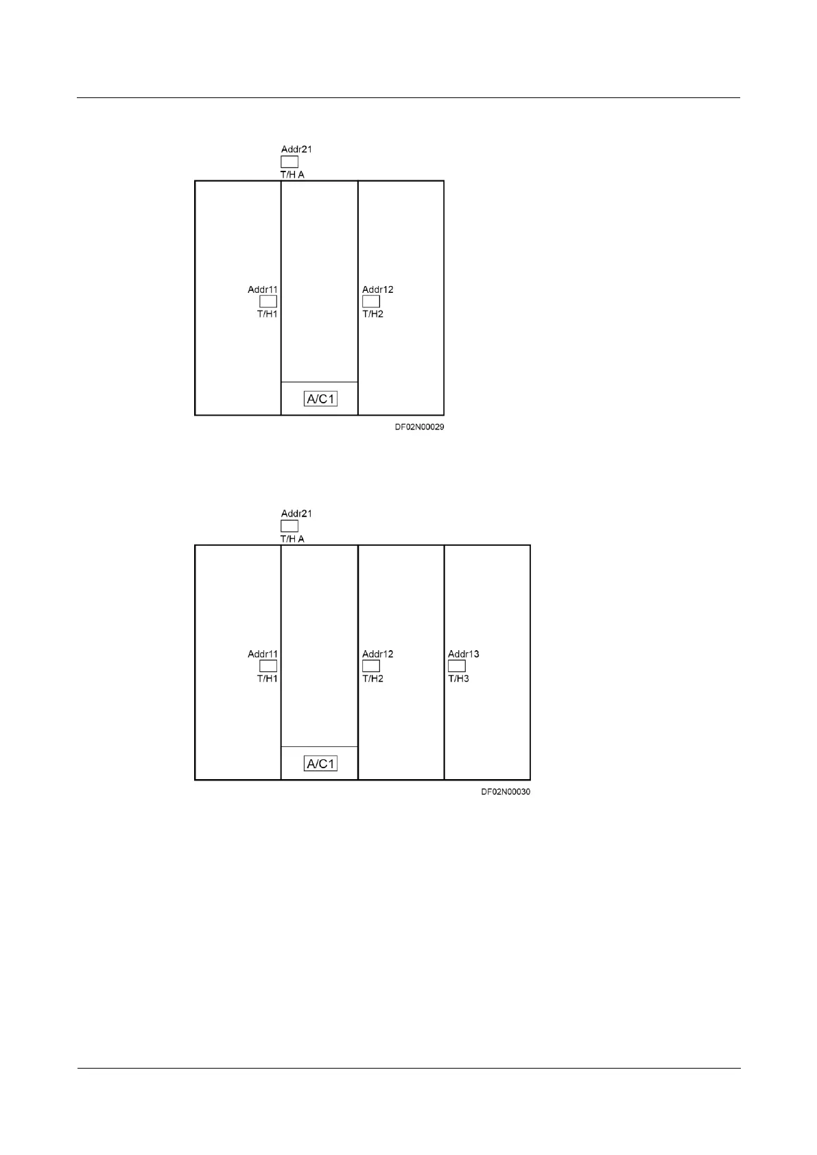
Figure 3-134 T/H sensor layout and DIP switch address (3 cabinets and 1 smart cooling product)
Figure 3-135 T/H sensor layout and DIP switch address (4 cabinets and 1 smart cooling product)

Table of Contents

Other manuals for Huawei FusionModule800

Related product manuals