EasyManua.ls Logo

Huawei FusionModule800 - Setting Teamwork Control Parameters

Huawei FusionModule800
298 pages
Print Icon
To Next Page IconTo Next Page
To Next Page IconTo Next Page
To Previous Page IconTo Previous Page
To Previous Page IconTo Previous Page
Loading...
FusionModule800 Smart Small Data Center
Installation Guide (Six Fans)
6 Power-On Commissioning
Copyright © Huawei Technologies Co., Ltd.
267
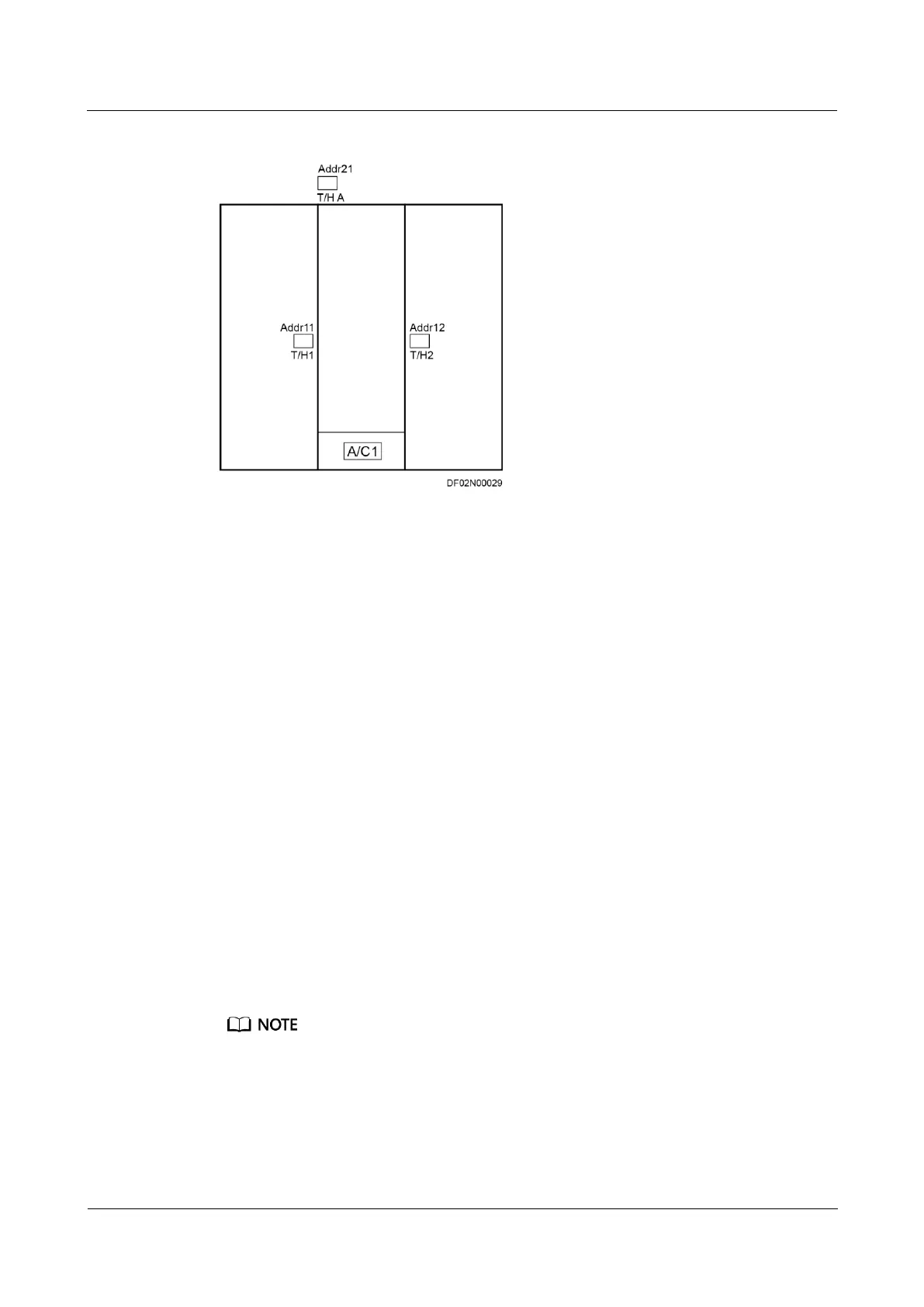
Figure 6-23 T/H sensor layout and DIP switch address (3 cabinets and 1 smart cooling product)
----End
6.4.2.2 Setting Teamwork Control Parameters
Context
Teamwork control parameters have the following bidirectional coupling relationships:
Number of running units ≤ Total number of units
Teamwork group no.: Group the smart cooling products in adjacent areas as one, that is,
assign one teamwork control number for them. At most four teamwork control groups
can be assigned (14).
Teamwork unit address: The addresses for the smart cooling products in the same group
cannot be the same (address range 132). The smart cooling product addressed 1 is the
master one that collects, processes, and delivers data. You are advised to set the value to
an integer in the range of 1 to the number of smart cooling products in the current group.
Procedure
Step 1 Log in to the ECC800 WebUI as admin.
Step 2 Choose Monitoring > Air Conditioner > NetCol5000-A0101 > Running Parameters >
Teamwork Settings to display the page for teamwork setting.
0101 in NetCol5000-A0101 is variable and subject to change with the smart cooling product connection
sequence. The displayed value prevails.
Step 3 Set teamwork control parameters.

Table of Contents

Other manuals for Huawei FusionModule800

Related product manuals