EasyManua.ls Logo

Husmann SPB - Page 35

Default Icon
113 pages
Print Icon
To Next Page IconTo Next Page
To Next Page IconTo Next Page
To Previous Page IconTo Previous Page
To Previous Page IconTo Previous Page
Loading...
32
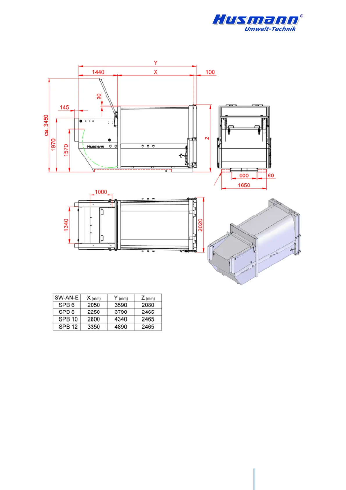
Dimensioned drawing SPB SW-AN-E

Table of Contents