EasyManua.ls Logo

Hyundai Elevator WBVF - Page 12

Default Icon
99 pages
Print Icon
To Next Page IconTo Next Page
To Next Page IconTo Next Page
To Previous Page IconTo Previous Page
To Previous Page IconTo Previous Page
Loading...
WBVF
A
INSTALLATION MANUAL
FOR ELECTRICAL PARTS
Doc. No
Ver.
Date
Page
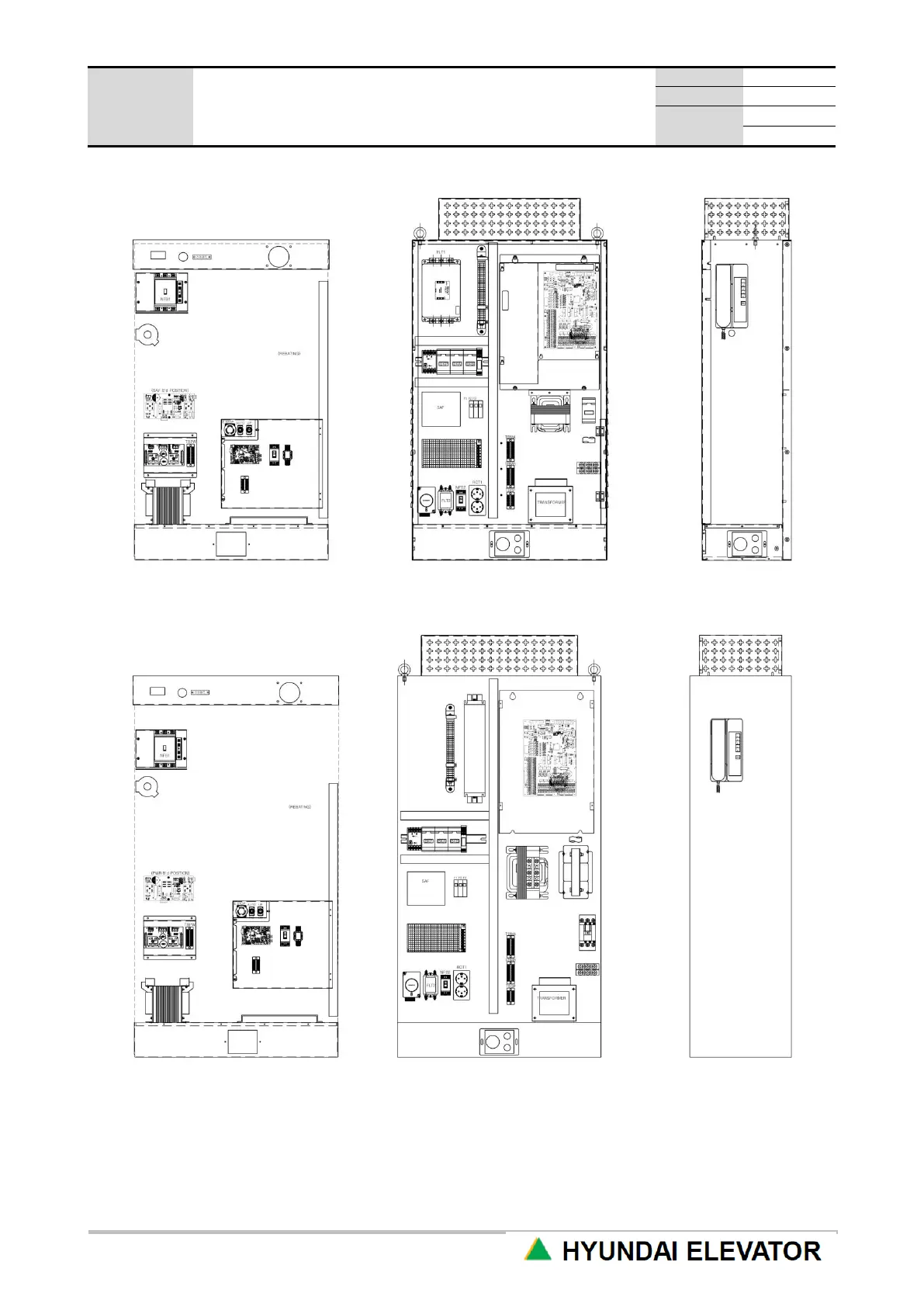
<Control Panel 15kw Layout>
<Control Panel 30kw Layout>
[Figure 1.4 Control Panel Parts Layout 15kW/30kW]

Table of Contents

Related product manuals