EasyManua.ls Logo

IAI XSEL - Page 61

IAI XSEL
566 pages
Print Icon
To Next Page IconTo Next Page
To Next Page IconTo Next Page
To Previous Page IconTo Previous Page
To Previous Page IconTo Previous Page
Loading...
39
Part 1 Installation Chapter 5 Specifications.
Part 1 Installation
2.2. PNP Specification
(1) Input part
External Input Specifications (PNP Specification)
Item Specification
Input voltage
24 VDC
10%
Input current 7 mA per circuit
ON/OFF voltage
ON voltage --- 8 VDC max.
OFF voltage --- 19 VDC min.
Isolation method Photocoupler isolation
External devices
[1] No-voltage contact (minimum load of approx. 5 VDC/1 mA)
[2] Photoelectric/proximity sensor (PNP type)
[3] Sequencer transistor output (open-collector type)
[4] Sequencer contact output (minimum load of approx. 5 VDC/1 mA)
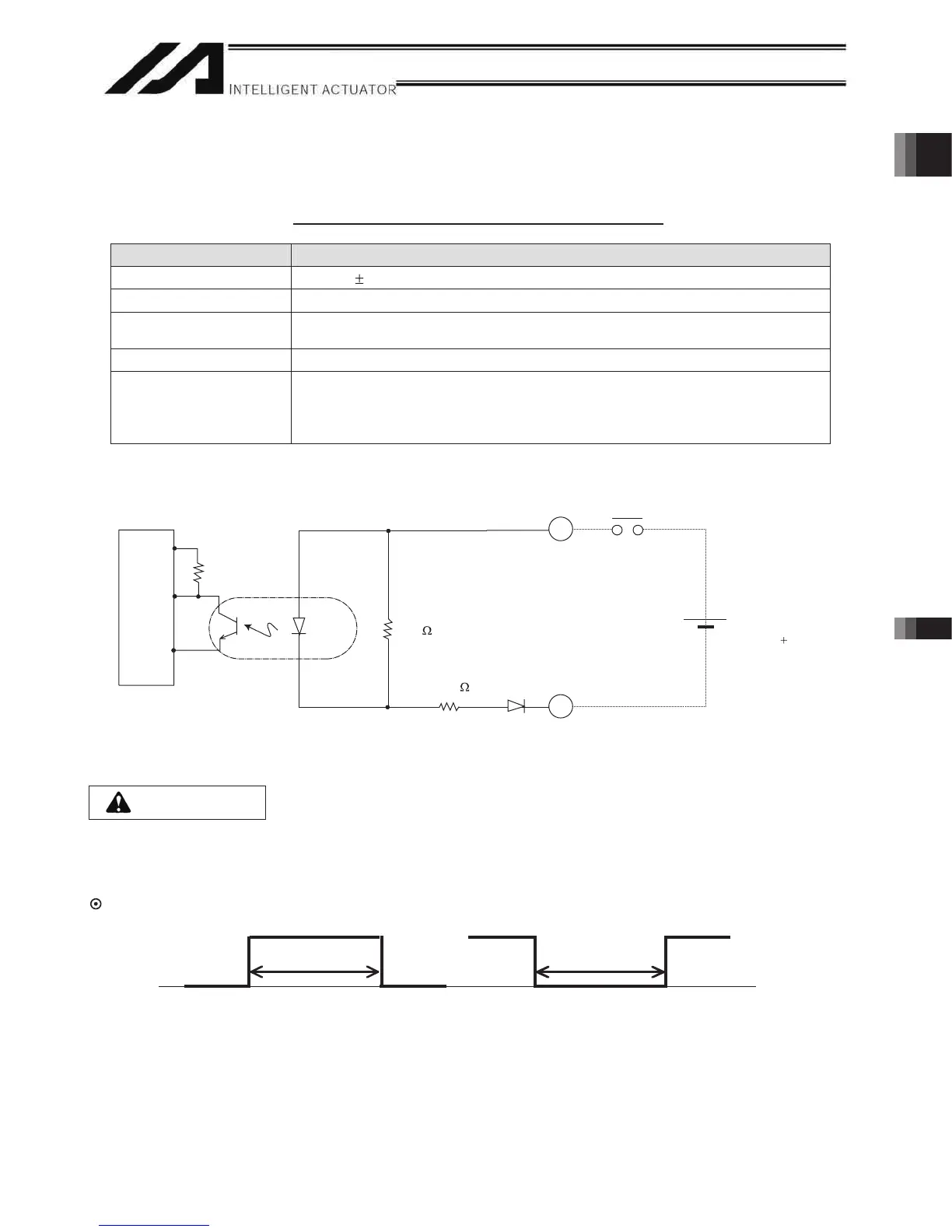
[Input circuit]
* N: I/O interface pin No. 50
Caution
If a non-contact circuit is connected externally, malfunction may result from leakage current. Use a
circuit in which leakage current in a switch-off state does not exceed 1 mA.
XSEL controller’s input signal
At the default settings, the system recognizes the ON/OFF durations of input signals if they are
approx. 4 msec or longer. The ON/OFF duration settings can also be changed using I/O parameter
No. 20 (input filtering frequency).
Internal circuit
Input terminal
External power supply
24 VDC
10%
N*
560
3.3 K
ON duration
OFF duration
+
-

Table of Contents

Related product manuals