EasyManua.ls Logo

Konami KX43 - Page 48

Konami KX43
51 pages
Print Icon
To Next Page IconTo Next Page
To Next Page IconTo Next Page
To Previous Page IconTo Previous Page
To Previous Page IconTo Previous Page
Loading...
1-6-3
6-3 © 2018 Konami Gaming Inc.P/N 810440
KX43
(Original Instructions)
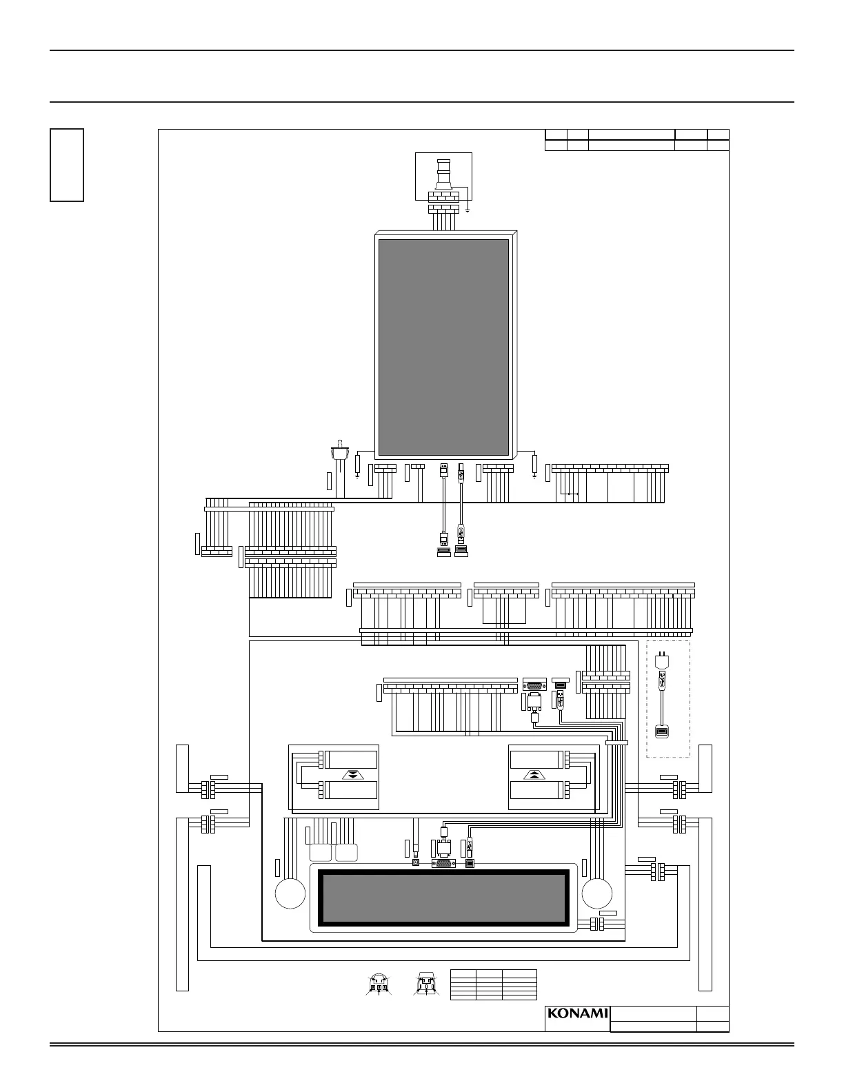
SECTION 6 - WIRING DIAGRAMS &
ELECTRICAL COMPONENTS
SHEET 2
KONAMI GAMING, INC.
Las Vegas, Nevada
APPDREV DATEEC
DESCRIPTION
SHEET NAME
PART NO.
SHEET
810442
PART NAME
WIRING DIAGRAM
KX43
HEA7940 10/12/18INITIAL RELEASE
APPDREV DATEEC
DESCRIPTION
DISPLAY PORT
TO BACKPLANE(K3-IFB2-4K)
CABINET LEFT SIDE LED
#311010
43" LCD UNIT
W/HALO LED
#310997 or EQU.
2
1
3
PAP-04V-S
(JST)
CAB-L
PRINTER BEZEL
BEZEL LED
#530721 (PDM2-BILB-G)
1
2
12V
LED
1
2
GHR-04V-S
(JST)
GHR-04V-S
(JST)
CN1
BILL VALIDATOR BEZEL
3
4
BZL 12V-2
BZL BV
1
2
GHR-04V-S
(JST)
GHR-04V-S
(JST)
BEZEL LED
#530721 (PDM2-BILB-G)
CN1
BEZEL LED
#530721 (PDM2-BILB-G)
BEZEL LED
#530721 (PDM2-BILB-G)
CN1
CN1
GAME 2 OF 3
1
2
3
4
3
4
12V
LED
3
4
2
1 5
4
3
6
TL
172168-1
(AMP)
2
1
3
DECK LED
#311011
UPR GND
UPR DA
21 3
PAP-03V-S
(JST)
UPR
2
1
3
DECK DA
DECK 12V
DECK GND
PAP-04V-S
(JST)
DECK
DA
12V
GND
CNB85
19” 1/3CUT LCD UNIT
W/TOUCH PANEL&HALO LED
TOUCH DASH #310992
PB LCD
LCD 24V
LCD GND
PB 24V
SPIN
PB USB
SW PB7
LAMP PB7
LAMP 12V-1
SW GND-1
SPIN
(PB7)
#490917
SPIN
SW PB7
LAMP PB7
LAMP 12V-1
SW GND-1
SPIN
(PB7)
#490917
2
1
3
PB DA
PB 5V
PB GND
PAP-03V-S
(JST)
PB LED
2
1
3
DA
5V
GND
2
1
3
DA
12V
GND
2
1
3
SIDE-L DA2
SIDE GND
PAP-04V-S
(JST)
SIDE 12V
SIDE-L
2
1
3
DA
12V
GND
DECK LEFT SIDE LED
#311014
CABINET RIGHT SIDE LED
#311009
DECK RIGHT SIDE LED
#311013
2
1
3
DA
12V
GND
2
1
3
DA
12V
GND
2
1
3
PAP-04V-S
(JST)
CAB-R
2
1
3
SIDE-R DA2
SIDE GND
PAP-04V-S
(JST)
SIDE 12V
SIDE-R
#111250
SW PB16
LAMP PB16
SW PB15
LAMP PB15
LAMP 12V-2
SW GND-2
LED1
LED2
COM
NO
NC
LAMP 12V
SW GND
-
ORANGE
SOLID COLOR
BLACK
STRIPE COLOR
-
TERMINAL
POSITION
SIGNAL
NAME
WIRE COLOR
LAMP PBxx
SW PBxx
LED2LED1
COM NO NC
PLAY BUTTON
(BACK SIDE)
PLAY BUTTON WIRE CONNECTION
LED1LED2
NC NO COM
CONNECTOR
CHANGE
(PB16)
#491095
CHANGE
CASHOUT
(PB15)
#491095
CASHOUT
LAMP 12V-2
SW GND-2
44
44 44
44
44
10
9
2
1 5
84
73
6 12
11
18
17
14
13
16
15
20
19
XADRP-26V
(JST)
TPR
24
23
22
21
26
25
TPR ID1
ID GND
TPR ID2
TPR ID3
TPR DA
TPR GND
TPR EXIST
ID GND
ID GND
39-01-2061
(MOLEX)
2
1
39-01-2040
(MOLEX)
4
3
LCD 24V
SIDE-L DA13
SIDE-L GND
SIDE-L 12V
SIDE-R DA13
SIDE-R GND
SIDE-R 12V
#111258
#111258
CNB63
TOUCH PANEL USB
BZL PRI
BZL BV
CNB55
SW GND-1
CNB07
2
1
4
3
20
19
36
35
38
37
50
49
48
47
52
51
54
53
56
55
58
57
60
59
MIL-60P
TO BACKPLANE (K3-IFB2-4K)
SW PB7
CNB07
TO BACKPLANE (K3-IFB2-4K)
CNB55
LCD 24V
LCD GND
LAMP PB7
LAMP 12V-1
CNB63
CNB63
SW PB16
LAMP PB16
SW PB15
LAMP PB15
LAMP 12V-2
SW GND-2
BZL 12V-1
PB 5V
PB DA
PB GND
CN5
ICON5
10
9
2
1 5
84
73
6 12
11
18
17
14
13
16
15
20
19
PUDP-26V-S
(JST)
26
25
DECK 12V
DECK DA
DECK GND
SIDE-L 12V
SIDE-R 12V
SIDE-L GND
SIDE-R GND
CN4
ICON4
2
1
18
17
14
13
16
15
20
19
22
21
PUDP-22V-S
(JST)
SIDE-R DA13
SIDE-L DA13
OPUS JR
GND
SIDE-R DA2
SIDE-L DA2
TO LED CONTROLLER (PDM2-ICON-G)
SIDE-R DA2
SIDE-L DA2
SIDE GND
SIDE 12V
2
1
XADRP-10V
(JST)
4
3
DECK LED
XADR-10V
(JST)
PB 5V
PB DA
PB GND
DECK 12V
DECK DA
DECK GND
6
5
8
7
10
9
2
1
4
3
6
5
8
7
10
9
SIDE-R DA2
SIDE-L DA2
DECK GND
DECK 12V
PB 5V
PB DA
PB GND
DECK 12V
DECK DA
DECK GND
TO TOPPER
USB POWER OUTLET
(OPTION)
#491013
USB
CHARGER
TO
AC OUTLET
TO USB
#491050
USB
CABLE
#111250
BZL 12V-1
BZL PRI
12V
LED
12V
LED
BZL 12V-2
TL 24V
TL1
TL2
TL3
TL4
TL5
NO
NC
COM
LCD SW
#490044
MAIN LCD
SW
SW GND
SW TOP
CN8
PUDP-32V-S
(JST)
UPR GND
UPR DA
TPR EXIST
TPR 24GND-1
TPR 24V-1
TPR 24GND-2
TPR 24V-2
TPR ID1
TPR ID2
TPR ID3
TPR GND
TPR DA
TL 24V
TL1
TL2
TL3
TL4
TL5
10
9
2
1 5
84
73
6 12
11
18
17
14
13
16
15
20
19
22
21 25
24
23
26 28
27 31
30
29
32
10
9
2
1 5
84
73
6 12
11
18
17
14
13
16
15
20
19
XADRP-20V
(JST)
UPR GND
UPR DA
TPR EXIST
TPR ID1
TPR ID2
TPR ID3
TPR GND
TPR DA
TL 24V
TL1
TL2
TL3
TL4
TL5
2
1 5
4
3
6
TO BASE
SW TOP
SW GND
LCD GND-1
LCD 24V-1
LCD GND-2
LCD 24V-2
ICON8
TO LED CONTROLLER (PDM2-ICON-G)TO LED CONTROLLER (PDM2-ICON-G)
TPR EXIST
TPR ID1
TPR ID2
TPR ID3
TPR GND
TPR DA
10
9
2
1 5
84
73
6 12
11
18
17
14
13
16
15
20
19
TL 24V
TL1
TL2
TL3
TL4
TL5
XADR-20V
(JST)
UPR GND
UPR DA
UPR PWR
LCD 24V-1
LCD 24V-2
LCD GND-1
LCD GND-2
ID GND
TPR BL
ID GND
TPR BL
TPR 24GND-1
TPR 24V-1
TPR 24GND-2
TPR 24V-2
TPR 24GND-1
TPR 24V-1
TPR 24GND-2
TPR 24V-2
ID GND
TPR BL
TPR 24GND-1
TPR 24V-1
TPR 24GND-2
TPR 24V-2
TPR BL
UPR LED
#111249 (2/2)
#111251
CANDLE
2
1 5
4
3
6
TL2
TL3
TL1
TL4
TL 24V
172168-1
(AMP)
TL5
2
1 5
4
3
6

Table of Contents

Related product manuals