EasyManua.ls Logo

MSA SUPREMATouch - SUPREMA Sensor Data Sheet Explosion-Proof Push-Button; Detector with Barriers MTL 728 and MTL 710

MSA SUPREMATouch
309 pages
Print Icon
To Next Page IconTo Next Page
To Next Page IconTo Next Page
To Previous Page IconTo Previous Page
To Previous Page IconTo Previous Page
Loading...
MSA AUER
MSA
SUPREMA Sensor Data Sheets
SUPREMA
279
US
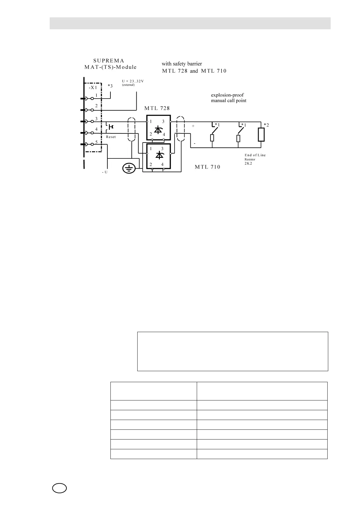
15.9 SUPREMA Sensor Data Sheet Explosion-Proof Push-Button
Detector with Barriers MTL 728 and MTL 710
Fig. 188
The cable screen is only connected to the SUPREMA.
*1 Connect push-button detector according to manufacturer´s specification.
MEDC NG16 6JF Type BGI. WIRING DIAGRAM BGE/I/W + PBE/IW
Contact type: NORMALLY OPEN (terminals 2-3 inside the detector). Carry out installation
according to NFPA72
With resistor 1.8 KW / 0.5 W in series with the contact; max. 10 Pieces
With zener diode 10 V /1.3 W in series with the contact; max. 20 Pieces
Check polarity
*2 End of Line Resistor 2K2 / 0.5 W has to be mounted in the last mounting support of the de-
tection zone circuit or in the portable detector according to the documents specified in *1
*3 Indication of leakage current. In the case of failure, the „OPEN COLLECTOR” transistor is
conducting to terminal 5
Connection module: MFI (Fire Input Module)
Configuration: External power supply, without Zener barrier.
(Switch position S101: 1 + 2 = OFF, 3 + 4 = ON)
Set potentiometer P101 to left position
Connection
data:
Maximum nominal current 42 mA
Maximum nominal voltage 22 V
Power consumption 1.5 W (including cable length)
Cable type 2-core, 80 % screened
Maximum loop resistance 50 ohms (cable resistance)
Maximum cable length 2000 m (1.5 mm
2
cross section per wire)
Cross section per wire allowed 0.5 ... 2.5 mm
2

Table of Contents

Related product manuals