EasyManua.ls Logo

MSA SUPREMATouch - SUPREMA Sensor Data Sheet Explosion-Proof Fire Detector Apollo Series 60 with Barriers MTL 728 and MTL 710 Pressure-Resistant; SUPREMA Sensor Data Sheet Explosion-Proof Fire Detector

MSA SUPREMATouch
309 pages
Print Icon
To Next Page IconTo Next Page
To Next Page IconTo Next Page
To Previous Page IconTo Previous Page
To Previous Page IconTo Previous Page
Loading...
SUPREMA
282
SUPREMA Sensor Data Sheets
MSA
US
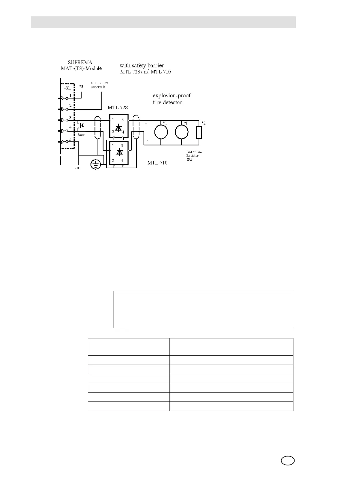
15.10 SUPREMA Sensor Data Sheet Explosion-Proof Fire Detector
Apollo Series 60 with Barriers MTL 728 and MTL 710pressure-resistant
Fig. 189
The cable screen is only connected to the SUPREMA.
*1 Connect according to manufacturer´s specification Apollo Series 60: SERIES 60 INTRINSI-
CALLY SAFE
SYSTEM DRAWING Z209883. Carry out installation according to NFPA72.
Only the mounting support Order No. 45681-207 specified in the data sheets must be used.
For each detection zone circuit, max. 20 fire detectors are allowed
*2 End of Line Resistor 2K2 / 0.5 W has to be mounted in the last mounting support of the de-
tection zone circuit or in the portable detector according to the documents specified in *1
*3 Indication of leakage current. In the case of failure, the „OPEN COLLECTOR” transistor is
conducting to terminal 5
Connection module: MFI (Fire Input Module)
Configuration: External power supply, without Zener barrier.
(Switch position S101: 1 + 2 = OFF, 3 + 4 = ON)
Set potentiometer P101 to left position
Connection
data:
Maximum nominal current 42 mA
Maximum nominal voltage 22 V
Power consumption 1.5 W (including cable length)
Cable type 2-core, 80 % screened
Maximum loop resistance 50 ohms (cable resistance)
Maximum cable length 2000 m (1.5 mm
2
cross section per wire)
Cross section per wire allowed 0.5 ... 2.5 mm
2

Table of Contents

Related product manuals