EasyManua.ls Logo

Nibe FIGHTER 1250 - Quick Guide - POOL 11; Quick Guide - Menu Settings POOL 11

Nibe FIGHTER 1250
88 pages
Print Icon
To Next Page IconTo Next Page
To Next Page IconTo Next Page
To Previous Page IconTo Previous Page
To Previous Page IconTo Previous Page
Loading...
37
NIBE FIGHTER 1250
POOL 11
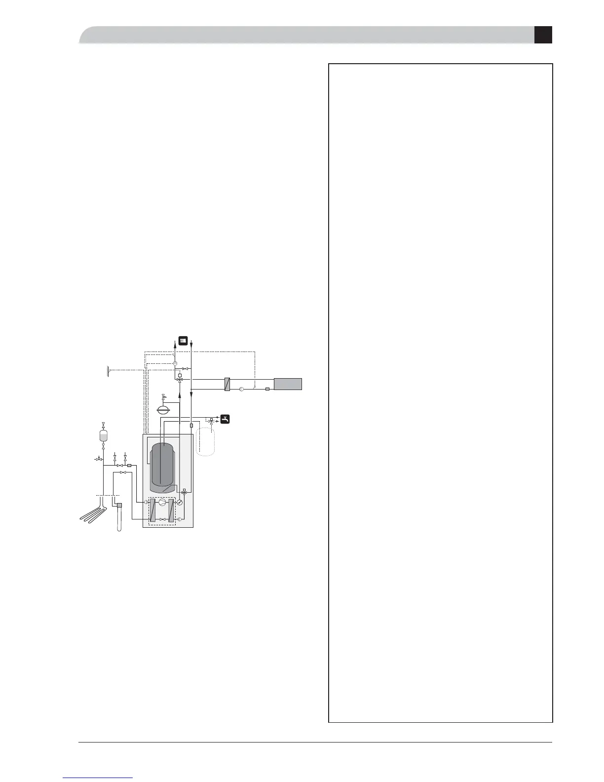
POOL 11 is an accessory that enables pool heating with
FIGHTER 1250.
FIGHTER 1250 prioritises charging of hot water. The heat
pump is controlled by the outdoor sensor and fl ow sensor.
When the pool temperature drops below the set start tem-
perature (menu 8.4.1 – menu 8.4.3) and there is no hot
water or heating requirement, the shuttle valve switches
direction and opens towards the pool heat exchanger.
Pool heating will run for at least the set pool heating time
(menu 8.4.3) even when a heating or hot water require-
ment arises.
The heating medium fl ow is adjusted in menu 8.4.5 so that
the temperature difference over the pool heat exchanger is
10 - 15 °C.
The shuttle valve and external circulation pump is controlled
by FIGHTER 1250.
This outline diagram assumes that the pool circulation
pump is in continuous operation.
Quick guidemenu settings POOL 11
Menu 8.1.1 Menu type [N]
The menu type is chosen here.
[N] Normal, covers the normal user's needs.
[E] Extended, shows all menus except the service menus.
[S] Service, shows all menus, returns to the previous
menu level 30 minutes after the last button was
pressed.
Selection option Normal, Extended or Service.
- Factory setting: Normal
Select “Service”.
Menu 9.2.10 Pool control [S]
Select ”On” if POOL11 is installed.
Menu 8.4.0 can be accessed.
Selection option Off and On.
- Factory setting: Off
Menu 8.4.0 Pool adjustments
Current pool temperature is displayed here.
(activated in menu 9.2.10)
Menu 8.4.1 Pooltemp./Setting [E]
The stop temperature for pool heating is selected here.
The value is adjustable between 5 and 55 °C
- Factory setting: 20 °C
Menu 8.4.2 Diff. pool/min-temp [E]
The difference from the value in menu 8.4.1 when pool
heating starts is stated here.
The value is adjustable between 0.5 and 9.5 °C
- Factory setting: 1.5 °C
Menu 8.4.3 Pool time [E]
The maximum time for pool heating is selected here, for
more than one heating demand.
The value is adjustable between 5 and 60 minutes.
- Factory setting: 20 min
Menu 8.4.4 Comp speed pool [E]
The compressor frequency for pool heating is selected
here.
The value is adjustable between 30 and 120 Hz.
- Factory setting: 60 Hz
Menu 8.4.5 Circ-pump speed pool [E]
The speed of the circulation pump during pool heating
is selected here.
The value is adjustable between 1 and 100 %
- Factory setting: 50 %
Menu 8.4.6 Pool heating [E]
Settings whether pool heating should be “On” or
“Off”.
Selection option Off and On.
- Factory setting: Off
D
Accessories
Pool
T
PTG
VXV
VX
UG
FG

Table of Contents

Related product manuals