EasyManua.ls Logo

Nibe FIGHTER 1250 - Outline Diagram

Nibe FIGHTER 1250
88 pages
Print Icon
To Next Page IconTo Next Page
To Next Page IconTo Next Page
To Previous Page IconTo Previous Page
To Previous Page IconTo Previous Page
Loading...
78
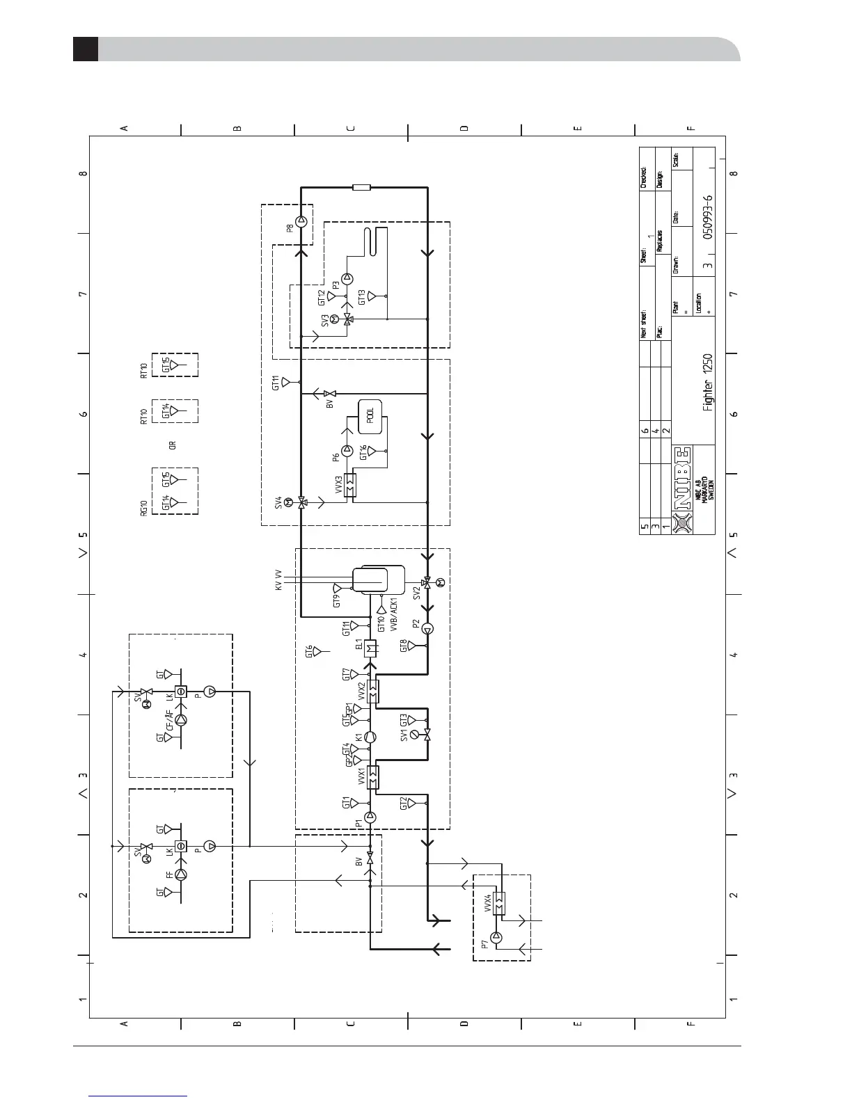
NIBE FIGHTER 1250
Outline Diagram
Outline Diagram
F
(Not wiring diagram)
Outline Diagram
Temperature sensor
GT1 Brine in
GT2 Brine out
GT3 Fluid pipe
GT4 Suction gas
GT5 Hot gas
GT6 Outdoor temperature sensor
GT7 Compressor water out
GT8 Return sensor 1
GT9 Hot water, top
GT10 Hot water, jacket
GT11 Flow sensor 1
GT12 Flow sensor 2
GT13 Return sensor 2
GT14 External compensation 1
GT15 External compensation 2
GT16 Pool temperature
Pumps
P1 Brine pump
P2 Heating medium pump system A / Hot
water
P3 Heating medium pump system B
P6 Circulation pump POOL
P7 Groundwater pump
P8 Heating medium pump system A with
POOL
Valves
SV1 Expansion valve
SV2 Three way valve heating system A
SV3 Shunt valve heating system B
SV4 Three way valve POOL
EL1 Immersion heater
K1 Compressor
VVX1 Evaporator
VVX2 Condenser
VVX3 POOL
VVX4 Ground water
LK Air cooler
BV Non-return valve
Pressostat sensor
GP1 High pressure pressostat
GP2 Low pressure pressostat
System 2 Present
Pool
Radiators
Cold air
FLM /
Free cooling
Ground water
FIGHTER 1250
FLM
Free cooling
Ventil
ation air
Extract airExhaust air

Table of Contents

Related product manuals