EasyManua.ls Logo

Panasonic DMR-E55PL - 18 Block Diagram; Display

Panasonic DMR-E55PL
114 pages
Print Icon
To Next Page IconTo Next Page
To Next Page IconTo Next Page
To Previous Page IconTo Previous Page
To Previous Page IconTo Previous Page
Loading...
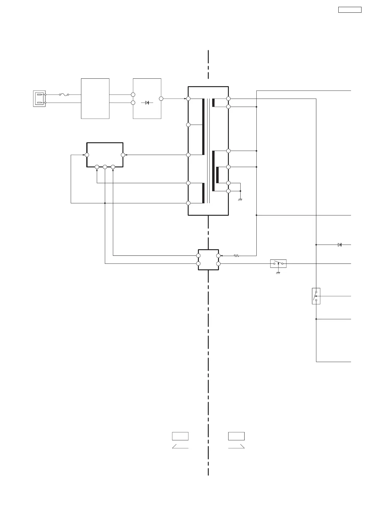
18 Block Diagram
2
1
4
3
1
4
3
7
PT
5
2
B2
B1
2
1
S1B
S1A
S2A
S2B
S2C
8
12
11
10
9
COLDHOT
PC001
COUPLER
PHOTO
P1
P2
4
(SW IC)
IC1
1
4
5
TRANSFORMER
POWER
ETB28BF1U6A
6
RECTIFIER
D001 ~ D004
L001,L002
ABSORBER
SURGE
AND
SUPPRESSOR
SURGE
F001
(250V2A)
P001
AC SOCKET
T001
STRG6353
S3
3
Q113
Q106
39
DMR-E55PL

Table of Contents

Related product manuals