EasyManua.ls Logo

Panasonic SA-BT100P - 17 Block Diagram; Digital

Panasonic SA-BT100P
174 pages
Print Icon
To Next Page IconTo Next Page
To Next Page IconTo Next Page
To Previous Page IconTo Previous Page
To Previous Page IconTo Previous Page
Loading...
17 Block Diagram
17.1. Digital
SD CARD
CSBMTP
XSRST
SD BOOT
XCMPREQ
IDEXRST
AO1IEC
SDA3
SCL3
SDA0
SCL0
SVDACO1
SVDACO0
SVDACO2
SVDACO3
SVDACO4
CSCLK
CSBPTM
XCINTP
XCINTM
XTRST
XRST
PEAKS-Pro2 HOST BUS
CK27A
TC - 1
SBMTP
PKS STATE
SD BOOT
XMPREQ
SCLK
SBPTM
XINTP
XINTM
XPKRST
CLK27M1
MCLK
HDCLK
CLK27M2
XTAL_IN
XTAL_OUT
VCTRL
SEL_HD
SEL_MC0
SEL_MC1
MIXL
MIXR
AMUT ZFLAG
IC51302
64M x 8bit NAND
FLASH ROM
IC51003
CLOCK GENERATOR
CLOCK GENERATOR
IC52003
DDR2 SDRAM
EA1-22_B
ED0-15_B
IC51303
EEPROM
ED0-7_B
24
28
5
9
10
27
BD DRIVE
IC51001
PEAKS-PRO2
IC54028
AUDIO D/A CONVERTER
Q55015
Q55016
BUFFER
BUFFER
BUFFER
BUFFER
BUFFER
Q55017
Q55019
Q55018
G_PY_OUT_AA
G_PB_OUT_AA
G_SCL0_B
G_SDA0_B
G_SCL3_B
G_SDA3_B
G_HDI_IEC_B
G_PR_OUT_AA
G_C_OUT_AA
G_Y_OUT_AA
G_PY_OUT_AC
G_PB_OUT_AC
G_PR_OUT_AC
G_C_OUT_AC
ST +3.3V
G_Y_OUT_AC
25
23
21
15
13
IC56002
HDMI TRANSMITTER
19
17
11
1
3
4
9
10
6
7
12
TX2+
TX2-
TX1+
TX1-
TX0+
TX0-
TXC+
TXC-
JK56001
D2+
D2-
D1+
D1-
D0+
D0-
CLK+
CLK-
13
CEC
16
HDMISDA
15
HDMISCL
PANEL LINK
TMDS
DIGITAL
CORE
XOR
OSC
4:2:2
to
4:4:4
VIDEO
DATA
CAPTURE/
DE GEN/
656 LOGIC
BLOCK
CONFIGRATION
LOGIC BLOCK
E-DDC
MASTER
119
120
DSD
DSCL
I2C
SLAVE
113
B16
C16
A18
A17
116
HDCP
KEYS
EEPRO
HDCP
ENCry
ption
Engin
5
15
16
SCK
VOUTL
14
VOUTR
ZEROR
A5
C5
G9
E9
A3
F8
AO2DMIX
K2
96
PI02
C21
6
DATA
HSDA
TSTHCLKIN
41
AMDAM
HSCL
HDMI
(AV OUT)
PRMY0-11_B
PRMC0-11_B
REGISTERS
G_HDI_D0-3_B
IDE1D0-15_B
TC - 2
TC - 3
TC - 7
TC - 4
TC - 8
TC - 5
TC - 9
TC - 6
TC - 10
IDE1A0-2_B
EA1-22_B
ED0-15_B
C0A0-12
C0DQ0-7
C0DQ8-15
C0DQ16-23
C0DQ24-31
C1DQ0-15
C1DQ16-31
C0A0-12
C0A0-12
C0A0-12
C1A0-12
C1A0-12
CK74A
AEXCKA
ASEL0A
12
6
15
ASEL1A
20
33.3M
33.3M
X1/CLK
X2
IC51005
6
5
1
8
CK33IN
CK33X1
VSELA
VC27A
G_SDCLK_B
G_SDDAT0_B
G_SDDAT1_B
G_SDDAT2_B
G_SDDAT3_B
SDDAT0
SDDAT1
SDDAT2
SDDAT3
SDCLK
SD IF
IDE_IF
VIDEO
AUDIO
QR51603
RESET
IC51002
5
4
VDD VOUT
INVERTER
ST D+3.3V
RESET
QR51001, QR51002,
QR51003, QR51004
BUFFER
POWER
SUPPLY
Q56004,
Q56007
Q56005
Q56006
SWITCH
Q56008
SYS6V
IC103
EEPROM
DDR2 SDRAM
IC52271
G_SDAO_B
G_SCLO_B
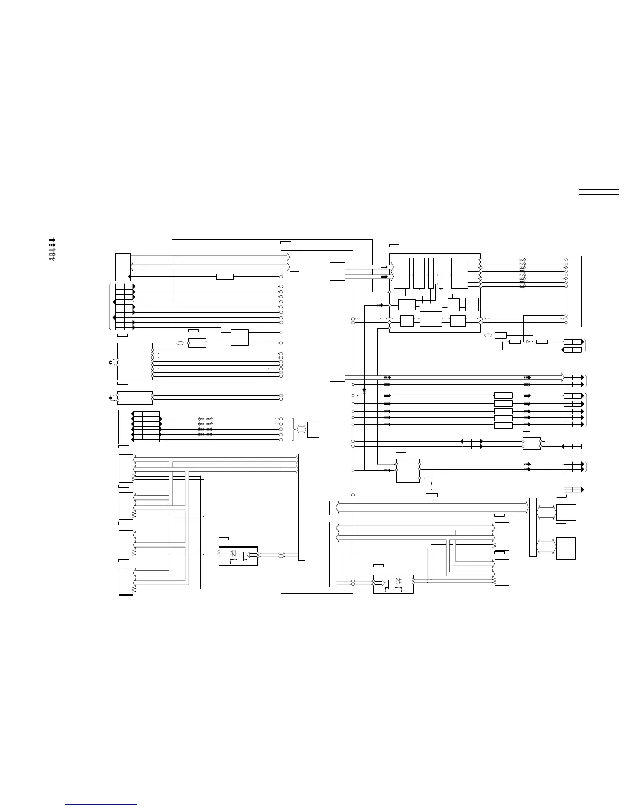
SA-BT100P/PC DIGITAL BLOCK DIAGRAM
C1CB00002777
MN2WS0043AP
C0EBE0000368
C1CB00002408
C3FBSC000029
C3ZBL0000027
C3ABSC000018
IC52010
DDR2 SDRAM
C3ABSC000018
IC52002
DDR2 SDRAM
C3ABSC000018
IC52001
DDR2 SDRAM
C3ABSC000018
C3ABSG000051
DDR2 SDRAM
IC52272
C3ABSG000051
C0FBBK000049
MN864704AKP
C0XCK
C0CK
C0XCK
C0CK
C0XCK
C0CK
C0XCK
C0CK
FROM/TO
SYSTEM CONTROL
FROM/TO
SYSTEM CONTROL
TO DSP
HDMI CONT
HDMI MONI
TO VIDEO
TO
AUDIO SELECTOR
FROM
DIGITAL P.C.B. REGULATOR
TO
SYSTEM CONTROL
RFKWEDF001PA
TC - 18
TC - 11
TC - 13
TC - 12
TC - 14
TC - 19
TC - 20
TC - 17
TC - 15
TC - 16
5
6
SDA
SCL
8
3
VCC
E2
QR54005
SWITCH
DDR2 CH0 IF
DDR2 CH1 IF
HOST I/F
AB2
C1CK
C1XCK
C1XCK_0
C1CK_0
C1XCK_0
C1CK_0
CK#
61
62
CK
CK#
61
62
CK
C1CK
C1XCK
INP
2
3
INN
PLL
6
7
OUTP
OUTN
Feed back
C0CK
C0XCK
CK#
44
45
CK
CK#
44
45
CK
C0CK
C0XCK
INP
IC52006
2
3
INN
PLL
6
7
OUTP
OUTN
Feed back
CK#
44
45
CK
CK#
44
45
CK
ZERO DELAY BUFFER
IC52240
ZER0 DELAY BUFFER
C1CB00002678
C1CB00002678
L3
G31
F17
F23
C23
E24
B23
A24
A23
A16
B30
F28
A31
B29
C28
F27
B28
A28
AP2
G26
B27
F26
A27
F25
AN13
AN12
G23
AB1
29
P58004
CN803
27
P58004
CN803
16
P58004
CN803
21
P58004
CN803
23
P58004
CN803
22
P58004
CN803
40
P51603
8
2
4
15
10
15
P58004
CN803
26
P58004
CN803
5
16
9
14
P58004
CN803
17
X51001
X51003
58
P58005
CN6201P6201
1
P58005
CN6201P6201
867
134
P58005
CN6201P6201
958
P58005
CN6201P6201
2129
P58005
CN6201P6201
3111
P58005
CN6201P6201
18
CN804
P58002
5
8
CN804
P58002
15
10
CN3001
CN54000
6
5 ~ 8
CN3001
CN54000
11 ~ 8
14
CN803
P58004
17
13
CN803
P58004
18
6
P58005
CN803
1
10
CN804
P58002
13
6
CN804
P58002
17
4
CN804
P58002
19
2
CN804
P58002
21
15
CN804
P58002
8
19
CN803
P58004
12
21
CN803
P58004
10
17
CN804
P58002
6
: BD / DVD VIDEO SIGNAL LINE
: MAIN SIGNAL LINE
: SD SIGNAL LINE
: BD / DVD AUDIO SIGNAL LINE
: AUDIO SIGNAL LINE
FROM DIGITAL P.C.B. REGULATOR
LOGIC BLOCK
46
AMSDI0
CAPTURE/
AUDIO DATA
G_HD1_D0_B
SA-BT100P / SA-BT100PC
81

Table of Contents

Related product manuals