EasyManua.ls Logo

Panasonic SA-BT100P - System Control

Panasonic SA-BT100P
174 pages
Print Icon
To Next Page IconTo Next Page
To Next Page IconTo Next Page
To Previous Page IconTo Previous Page
To Previous Page IconTo Previous Page
Loading...
17.6. System Control
8
3
5
9
211
MICRO-PROCESSOR
TUNER PACK
MN103SF73NXW
31
SPIDO
6
I2CSCL
45
CPRST
46
CPRDY
CPRST
CPRDY
4
I2CSDA
58
WMDET
23
WMDI
22
WMDO
21
WMCL
57
WMLINK
56
WMIDSET
55
WMCHDIR
48
IPODVC
49
IPOCHG
IPODVC
IPOCHG
5
TUSD
86
TUST
33
SPICLK
71
FLCS
53
JOGA
26
REMOCON
99
KEY2
54
JOGB
7
DIN
8
CLK
9
STB
5
30-VP
OSC
G1
G6
G1
G6
P1
P17
P1
P17
G7
G10
G7
G10
1
45
F-
F+
IC100
EEPROM
C3EBFC000042
IC105
24bit SERIAL PARALLEL CONVERTER
C0JBAZ002843
IC101
RESET
C0EBE0000242
IC102
FL DISPLAY DRIVER
C0HBB0000057
IC6001
STOP PLAY SELECTOR BACKWARD
TUNER V
FORWARD SW BOOST
TUNER
V
98
KEY1
12
OSCO
13
OSCI
36EXTIODO
30EXTIOCL
16
DATA
EXTIODO
EXTIOCL
CLK
17
19NRST
36EXTIOSTB
8
OCD SDA
9
OCD SCL
52
SYNC
19
CLR#
4 VOUT 5VCC
MRST
EXTIOSTB
STB#
18
29
P10
P11
P16
P24
LED1
LED2
15
1
3
OPEN/CLOSE POWER
DP6001
VR6001
VOLUME JOG
FL DISPLAY
T7001
IP7001
SWITCHING
TRANSFORMER
19 7
P6001
CN806
3
CN6102
CN6001
CN6101
CN6103
LED3
LED4
P6
25
HP MUTE
LATCH
SHIFT
REGISTER
OCD
TSD
CHARGE
PUMP
GATE
LOGIC
UVLO
SERIAL
DATA
INTERFACE
OSC
CONTROL
DISPLAY
MEMORY
(24bits x 12 Words)
SEGMENT
DRIVER
GRID
DRIVER
GRID
DRIVER
KEY SCAN
OUTPUT
TIMING
GENERATOR
KEY MATRIX
MEMORY
DIMMING
CIRCUIT
CONTROLLER
X100
16
XO
15
XI
X101
100
2
I2CSCL
Z801
3
I2CSDA
Z801
4
TUSD
Z801
6
TUST
WMDET
WMDI
WMDO
WMCL
WMLINK
WMIDSET
WMCHDIR
Z801
FOR DEBUG
4
MICONRST
OCD SDA
OCD SCL
87
PKS STAT
PKS STATE
96
SD BOOT
SD BOOT
94
XPKRST
XPKRST
82
SBPTM
SBPTM
83
SBMTP
SBMTP
84
SCLK
SCLK
92
HDMI CONT
HDMI CONT
27
HDMI MONI
HDMI MONI
95
XINTM OUT
90
XINTM
XINTM OUT
70
FSHIFT
FSHIFT
31
SPIDO
SPIDO
32
SPIDI
SPIDI
33
SPICLK
SPICLK
7
XMPREQ
XMPREQ
81
XINTP OUT
XINTP OUT
88
PW GOOD
PW GOOD
CN101
2
CN101
3
CN101
TRANSMITTER
DIGITAL
10 16
FL DATA
P6001
CN806
12 14
P6001
CN806
25
FL+
1
P6001
CN806
PSAVE
CONTROL
Q7001
LED DRIVE
Q6101
D6101
STANDBY LED
24
FL-
FL+
FL-
2
P6001
CN806
22
-VP
4
P6001
CN806
917
FL CLK
P6001
CN806
11
FLCS
SPIDO
SPICLK
15
FL STB
P6001
CN806
16 10
JOG A
P6001
CN806
15 11
JOG B
P6001
CN806
JOGA
JOGB
521
REMOTE
P6001
CN806
17 9
P6001
CN806
71315
CN802
CN6301CN6302
61416
CN802
CN6301CN6302
51517
CN802
CN6301CN6302
41618
CN802
CN6301CN6302
31719
CN802
CN6301CN6302
21820
CN802
CN6301CN6302
11921
CN802
CN6301CN6302
93
IPODVDET
34
IPODDO
47
IPOD DET
6
OUT
7
OUT
8
OUT
2
IN
3
IN
EN
OC
4
5
IPOD ACC POWER IPOD VDET
IPODDO
IPOD 5V
IPOD
113
CN1101
CN1002CN1001
DO UART IN
318
CN1101
CN1002CN1001
35
IPODDI
50
PCONT
IPODDI
DO UART OUT
PCONT
219
CN1101
CN1002CN1001
IPOD DET
1130
CN1101
CN1002CN1001
78
CN1101
CN1002
10
CN7001
CN5802
CN1001
1
CN6101
CN6103
REMOCON
KEY2
D7003
D7006
REMOTE
CONTROL SENSOR
IR6001
S6001 S6002 S6003 S6004 S6005 S6006
SYS3.3V
SYS3.3V
SYS6V
D3.3V
SYS6V
VREF3.3VVREF3.3V
+12V
18 8
P6001
CN806
1
CN6102
CN6001
22 4
P6001
CN806
1
CN6003
CN6002
LED DRIVE
Q6001
D6001
JOG LED
20 6
P6001
CN806
LED DRIVE
Q6002
D6002
7.1CH DSP LED
21 5
P6001
CN806
17 1
CN5050
CN503
LED DRIVE
Q6003
INVERTER
QR101
D6003
SW BOOST LED
KEY1
S6102 S6101
COPROCESSOR
MFI1341S2095
IC1103
X1101
2
XIN
3
XOUT
5
SDA
6
SCL
USB HIGH SIDE SWICTH
C0DBZYE00002
PSW1
IC1001
7
I2C SCL
15
I2C SDA
11
CPRDY
38
NSRT
HP MUTE
P12
2
W MUTE
W MUTE
P3
22
AMUTE
P19
10
NPMUTE MOD DA
12 6
CN5050
CN503
P2
21
MUTE S MUTE S
13 5
CN5050
CN503
P1
20
MUTE F MUTE F
14 4
CN5050
CN503
P4
4
3
FHOPPWBPF
11
CN5802
CN7001
P13
AMBP
AMUTE
AMP ATT
CLIP DETECT
TO AUDIO
SELDO
TO AUDIO SELETOR
TO AUDIO SELECTOR
TO
DIGITAL AUDIO AMP
P18
9
SD L
SD L
P9
28
IPOD SEL
IPOD SEL
TO VIDEO
P17
7
V OUT MUTE
V OUT MUTE
P7
26
RGB H
RGB H
TO POWER
5
19 12
P58004
CN803
P15
P STANBY H P STANBY H
TO DIGITAL P.C.B. REGULATOR
FROM/TO
DSP
FROM/TO
DIGITAL
FROM
DIGITAL P.C.B. REGULATOR
1
CN5802
CN7001
SYNC SYNC
FROM POWER
51
DC DET
4
CN5802
CN7001
DCDET DCDET
59
AMPDCDET
16 2
CN5050
CN503
AMPDCDET
3
CLIPDET
CLIP DET
DC DET
CLIP DET
10
HPDET
HP DET
HP SW
69
AMPATT
AMP ATT
AMP ATT
60
SELDO
SELDO
SELDO
SELCL
62
SELCL
SELCL
SELCL
FROM
DIGITAL AUDIO AMP
DCDET
FROM/TO
AUDIO
TO POWER
229
P58004
CN803
427
P58004
CN803
526
P58004
CN803
823
P58004
CN803
922
P58004
CN803
1021
P58004
CN803
1318
P58004
CN803
1417
P58004
CN803
85
AMUT ZFLAG
AMUT ZFLAG
P58002
CN804
1516
P58004
CN803
1615
P58004
CN803
223
CN3005
CN501
421
CN3005
CN501
322
CN3005
CN501
205
CN3005
CN501
1714
P58004
CN803
1813
185
P58004
CN803
DC DETECT
Q1101
IPOD
OUT DRIVE
IPOD
IN DRIVE
IPOD IN
CONTROL
IPOD OUT
CONTROL
Q1102
Q1103
QR1101
QR1102
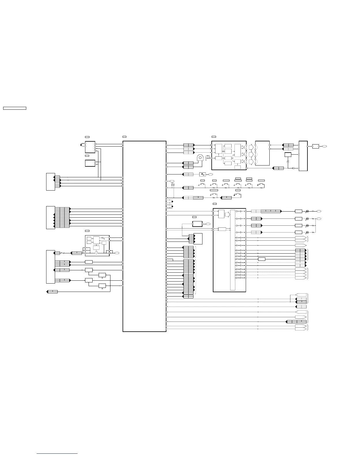
SA-BT100P/PC SYSTEM CONTROL BLOCK DIAGRAM
SA-BT100P / SA-BT100PC
88

Table of Contents

Related product manuals