EasyManua.ls Logo

Peri CB 160 - Page 61

Default Icon
92 pages
Print Icon
To Next Page IconTo Next Page
To Next Page IconTo Next Page
To Previous Page IconTo Previous Page
To Previous Page IconTo Previous Page
Loading...
57
3.2
3.2
3.1
3.1
Instructions for Assembly and Use – Standard Configuration
CB 240 Climbing Formwork
C1 Planning and work preparation
Connecting VARIO GT 24
formwork
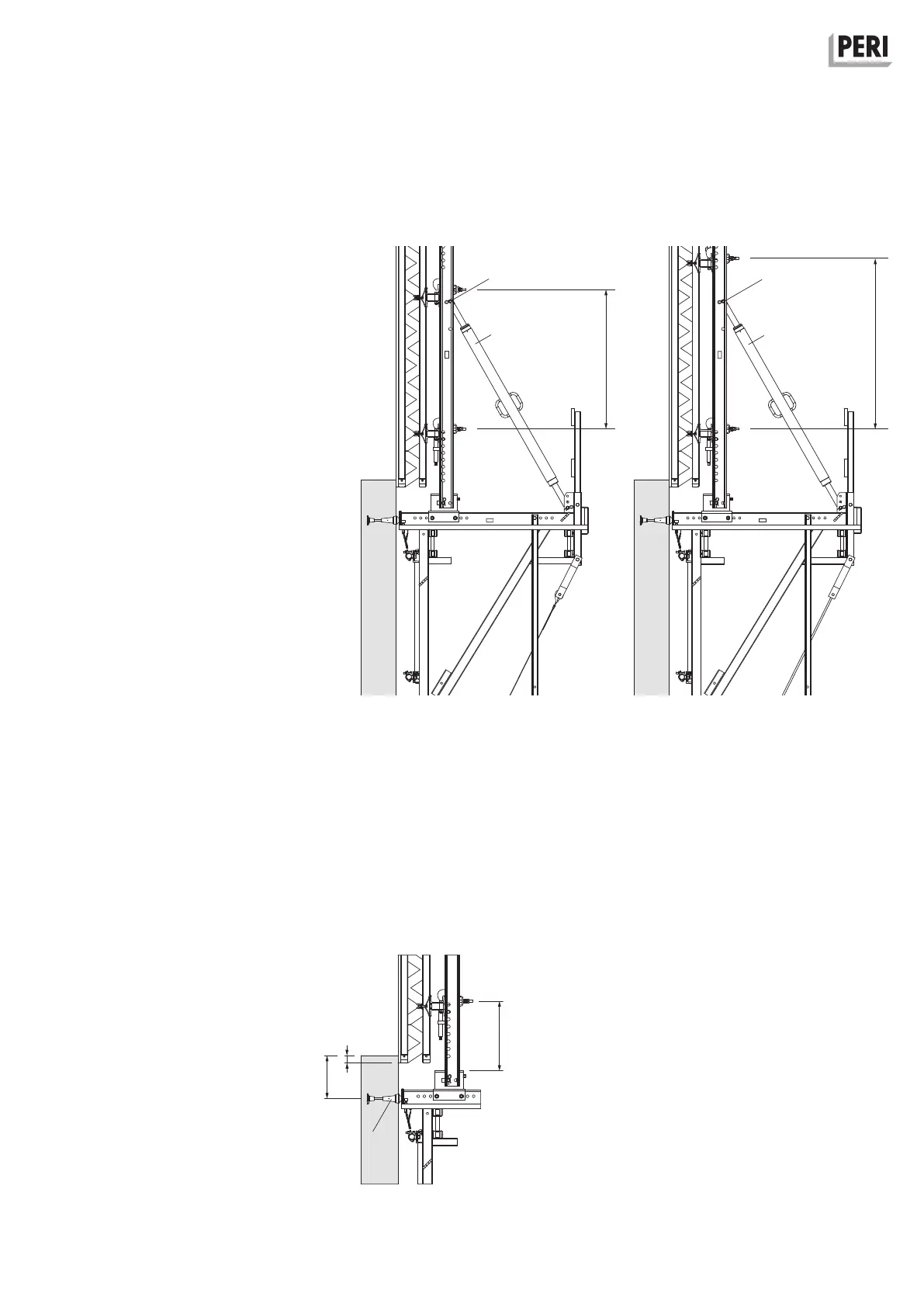
Adjustable Brace 164-224
According to the formwork waler spac-
ing, fix the adjustable brace (3.1) with
bolt Ø 25 x 180 (3.2) in the bottom hole
(Fig. C1.08a)
or in the top hole
(Fig. C1.08b)
of the strongback.
Anchoring
As a rule, the edge distance of the
anchoring (5) can be executed with
a = 35 cm. If necessary, this can
deviate from the plan. (Fig. C1.09)
1.21 m
Fig. C1.08a Fig. C1.08b
1.48 m
a = 35 cm
56.6 cm
Fig. C1.09
6 cm
5

Other manuals for Peri CB 160

Related product manuals