EasyManua.ls Logo

Peri CB 160 - Use as Working and Safety Scaffold

Default Icon
92 pages
Print Icon
To Next Page IconTo Next Page
To Next Page IconTo Next Page
To Previous Page IconTo Previous Page
To Previous Page IconTo Previous Page
Loading...
64
200 kg/m
2
75 kg/m
2
≤ 90 cm
Instructions for Assembly and Use – Standard Configuration
CB 160 Climbing Formwork
C1 Planning and work preparation
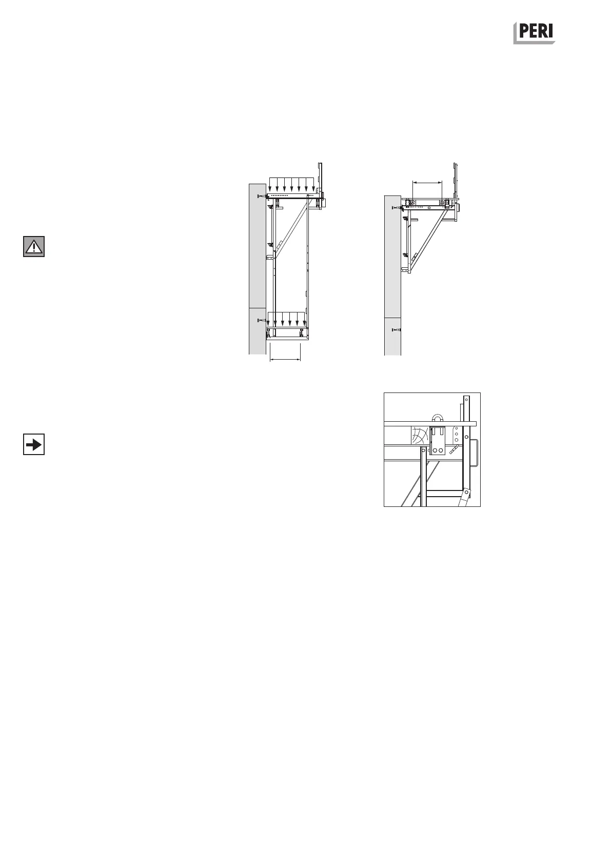
Use as working and safety
scaffold
Working scaffold according to
DIN EN 12811
Other loads require separate static
calculations!
With a load that corresponds to
DIN EN 12811 Load Class 3 (200 kg/m²),
the brackets and platforms can be
assembled without any additional proof,
see C1 Platform Decking applies.
(Fig. C1.20)
Working scaffold with finishing
platform
If a finishing platform is attached to a
working platform with decking on top,
ensure that the rear platform connec-
tion does not collide with the Handrail
Post 200. If necessary, the position of
the timber 16/16 and the Platform
Connection CB 160 is to be changed.
(Fig. C1.21)
Fig. C1.20
Fig. C1.21
< 1.0 m

Other manuals for Peri CB 160

Related product manuals