EasyManua.ls Logo

Rotex GW-30 C22 - 4 Montaż; Wymiary Instalacji

Rotex GW-30 C22
Print Icon
To Next Page IconTo Next Page
To Next Page IconTo Next Page
To Previous Page IconTo Previous Page
To Previous Page IconTo Previous Page
Loading...
11
4 MONTAŻ
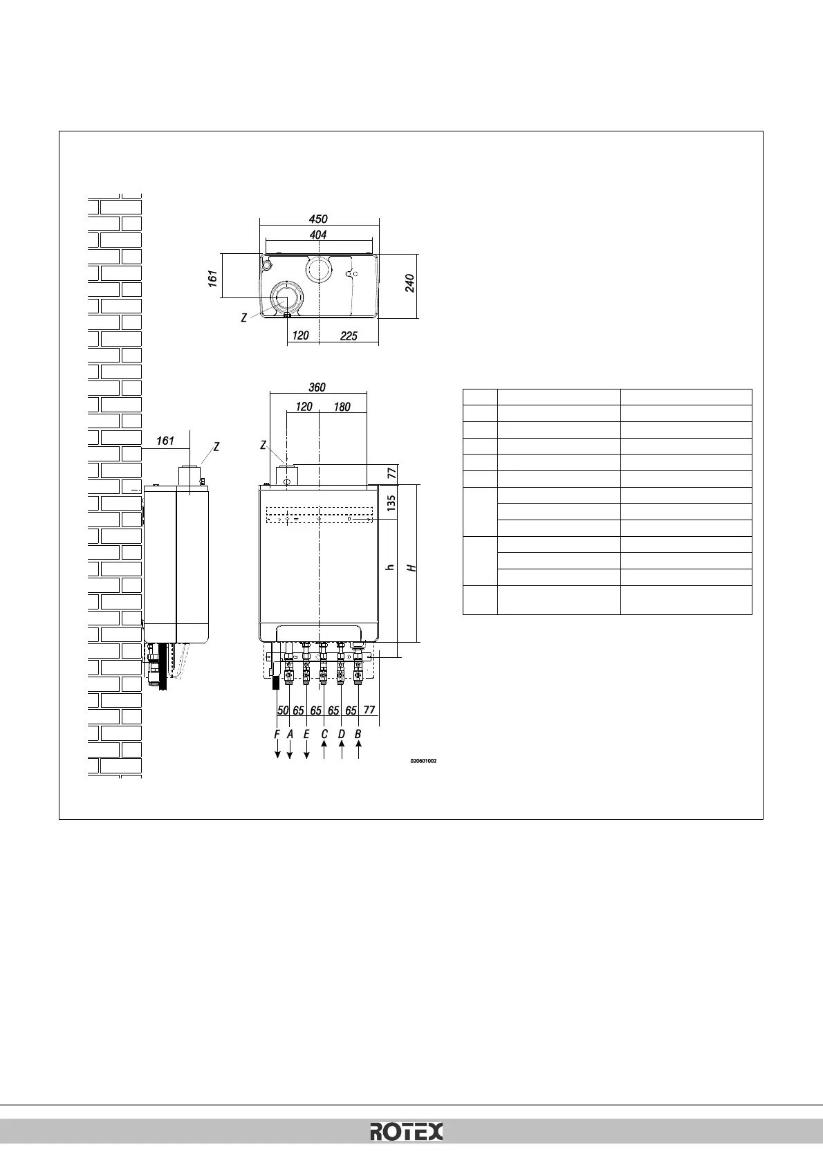
4.1 Wymiary instalacji
Urządzenie z przewodami połączonymi w dół:
Jednostka + listwa do montażu naściennego
A=
Zasilanie c.o.
G ¾(zew.)
B =
Powrót c.o.
G ¾(zew.)
C=
Gaz
G ½(wew.)
D=
Zawór zimnej wody
R ½
E=
Zawór ciepłej wody
R ½
F=
Wylot skroplin
Ø dn25 (elastyczne)
h=
517 mm
RKOMBG22AAV1
577 mm
RKOMBG28AAV1
637 mm
RKOMBG33AAV1
H=
590 mm
RKOMBG22AAV1
650 mm
RKOMBG28AAV1
710 mm
RKOMBG33AAV1
Z =
Wylot spalin/wlot
powietrza
Ø60/100 (koncentryczny)

Table of Contents

Related product manuals