EasyManua.ls Logo

Roto Patio Fold - Top-Running Frame

Roto Patio Fold
92 pages
Print Icon
To Next Page IconTo Next Page
To Next Page IconTo Next Page
To Previous Page IconTo Previous Page
To Previous Page IconTo Previous Page
Loading...
Subject to change. Roto Patio Fold IMO_374_EN_v1 April 2015 25
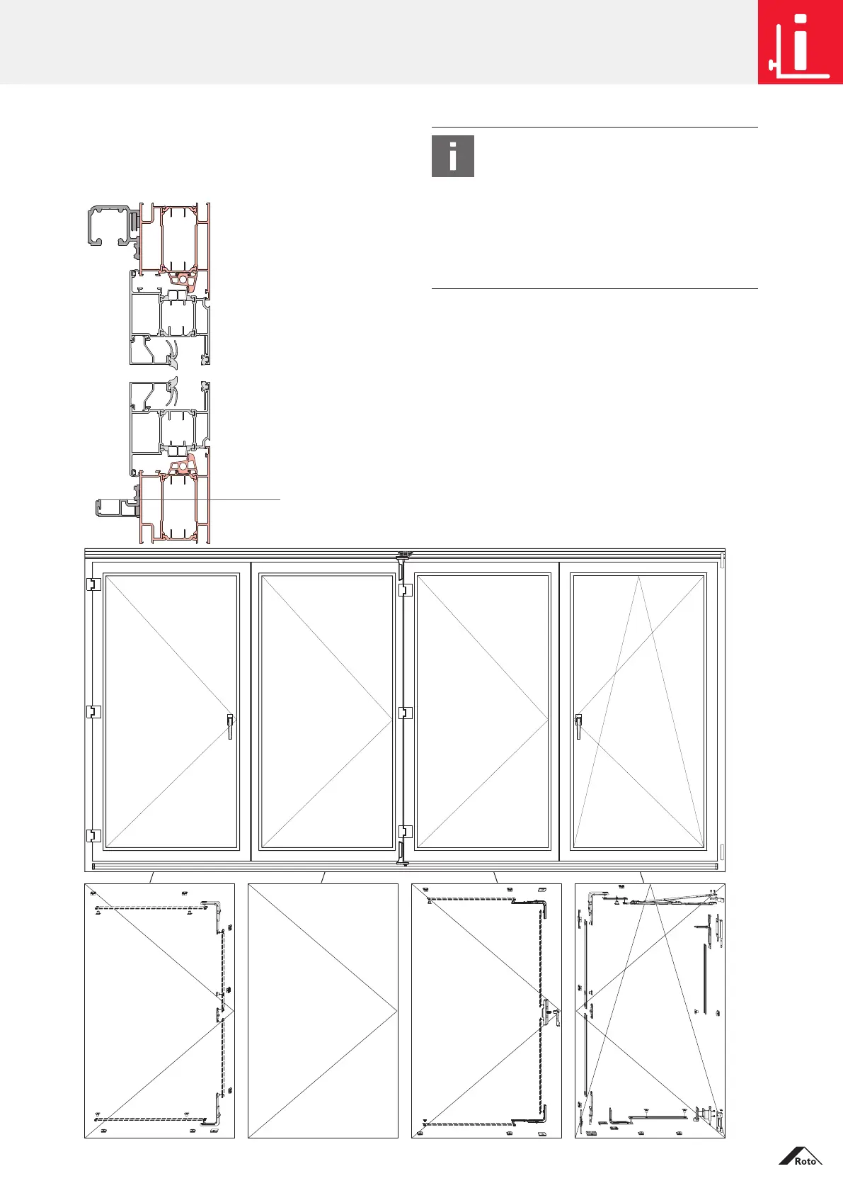
Information on the product
Possible combinations:
Top-running frame
Kombinationsmöglichkeit 1
- Untenlaufend
- Führungsschiene oben
- Laufschiene unten
Kombinationsmöglichkeit 2
- Obenlaufend
- Laufschiene oben
- Führungsschiene unten
Kombinationsmöglichkeit 3
- Untenlaufend
- Führungsschiene oben
- Komfort-Bodenschwelle unten
Kombinationsmöglichkeit 1
- Untenlaufend
- Führungsschiene oben
- Laufschiene unten
Kombinationsmöglichkeit 2
- Obenlaufend
- Laufschiene oben
- Führungsschiene unten
Kombinationsmöglichkeit 3
- Untenlaufend
- Führungsschiene oben
- Komfort-Bodenschwelle unten
Combination possibility 2
Top running
Roller track, top
Guide track, bottom
max. TEFF
NOTE!
In conjunction with this document, the follow-
ing documents for the installation of Turn-Only
and Tilt&Turn hardware apply:
IMO_72 (Roto AL 540 Tilt&Turn sash)
IMO_20 (Roto AL 540 Turn-Only sash)
CTL_14 (Roto AL catalogue)
Roto Patio S flush-encased gearboxes can be used
depending on the profile.

Table of Contents

Related product manuals