EasyManua.ls Logo

Roto Patio Fold - Bottom-Running Enhanced Threshold

Roto Patio Fold
92 pages
Print Icon
To Next Page IconTo Next Page
To Next Page IconTo Next Page
To Previous Page IconTo Previous Page
To Previous Page IconTo Previous Page
Loading...
26 April 2015 IMO_374_EN_v1 Roto Patio Fold Subject to change.
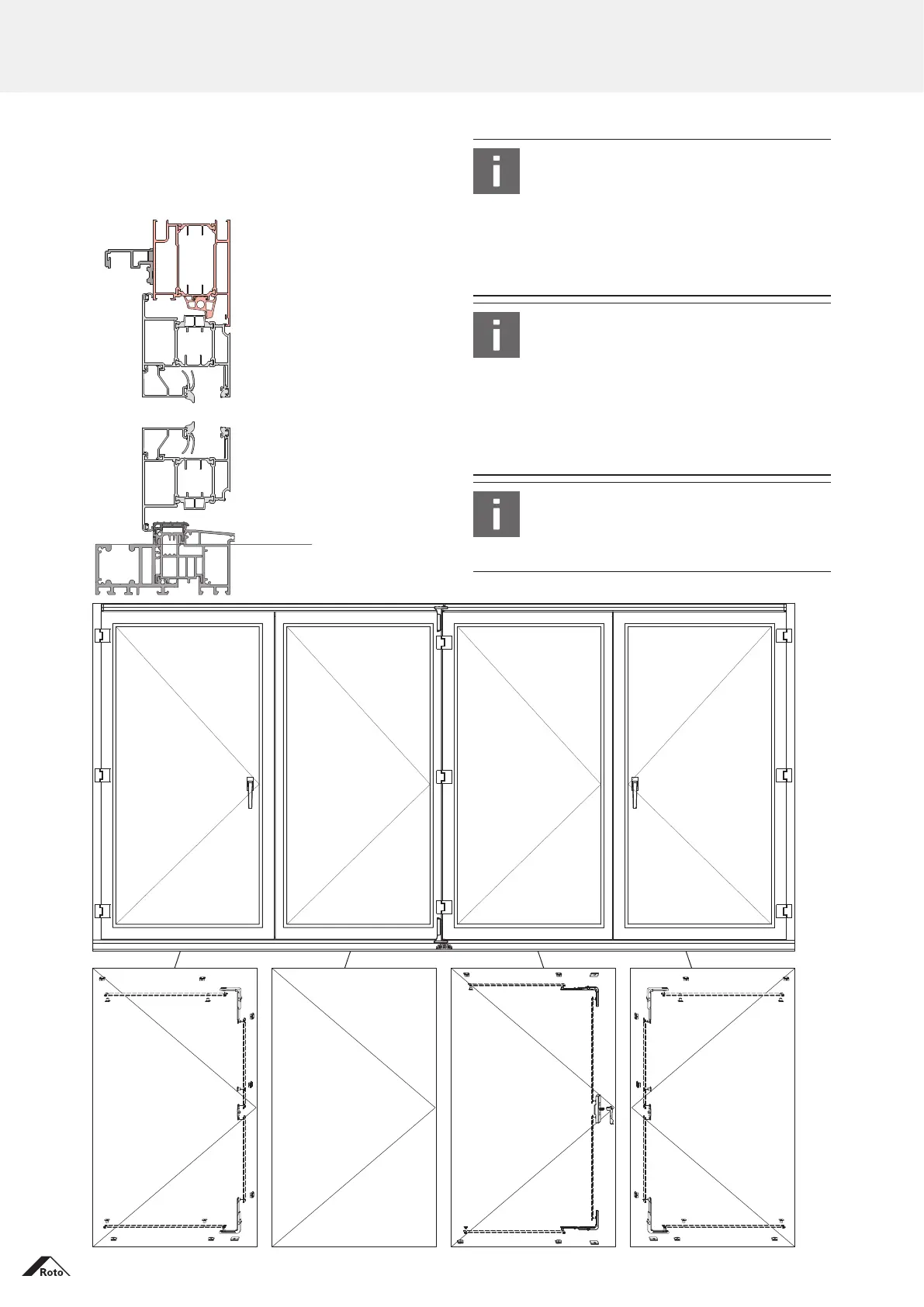
Information on the product
Possible combinations:
Bottom-running enhanced threshold
Kombinationsmöglichkeit 1
- Untenlaufend
- Führungsschiene oben
- Laufschiene unten
Kombinationsmöglichkeit 2
- Obenlaufend
- Laufschiene oben
- Führungsschiene unten
Kombinationsmöglichkeit 3
- Untenlaufend
- Führungsschiene oben
- Komfort-Bodenschwelle unten
Kombinationsmöglichkeit 1
- Untenlaufend
- Führungsschiene oben
- Laufschiene unten
Kombinationsmöglichkeit 2
- Obenlaufend
- Laufschiene oben
- Führungsschiene unten
Kombinationsmöglichkeit 3
- Untenlaufend
- Führungsschiene oben
- Komfort-Bodenschwelle unten
Combination possibility 3
Bottom running
Guide track, top
Enhanced threshold, bottom
max. TEFF
NOTE!
In conjunction with this document, the follow-
ing documents for the installation of Turn-Only
and Tilt&Turn hardware apply:
IMO_20 (Roto AL 540 Turn-Only sash)
CTL_14 (Roto AL catalogue)
Roto Patio S flush-encased gearboxes can be used
depending on the profile.
NOTE!
The barrier-free enhanced threshold acc.
toDIN18040-1 fulfils the requirements of
theEnergy Saving Regulations (isothermal
efficiency acc. to DIN4108). It is only of
limited suitability in driving rain conditions.
The impermeability depends on the profile
andmust be tested individually.
NOTE!
In
conjunction with the enhanced threshold
and Patio Fold hinges, only the Turn-Only sash
can be used as the access sash

Table of Contents

Related product manuals