EasyManua.ls Logo

Roto Patio Fold - Predrilling sash;frame hinges

Roto Patio Fold
92 pages
Print Icon
To Next Page IconTo Next Page
To Next Page IconTo Next Page
To Previous Page IconTo Previous Page
To Previous Page IconTo Previous Page
Loading...
Subject to change. Roto Patio Fold IMO_374_EN_v1 April 2015 41
Installation
Drilling and routing dimensions
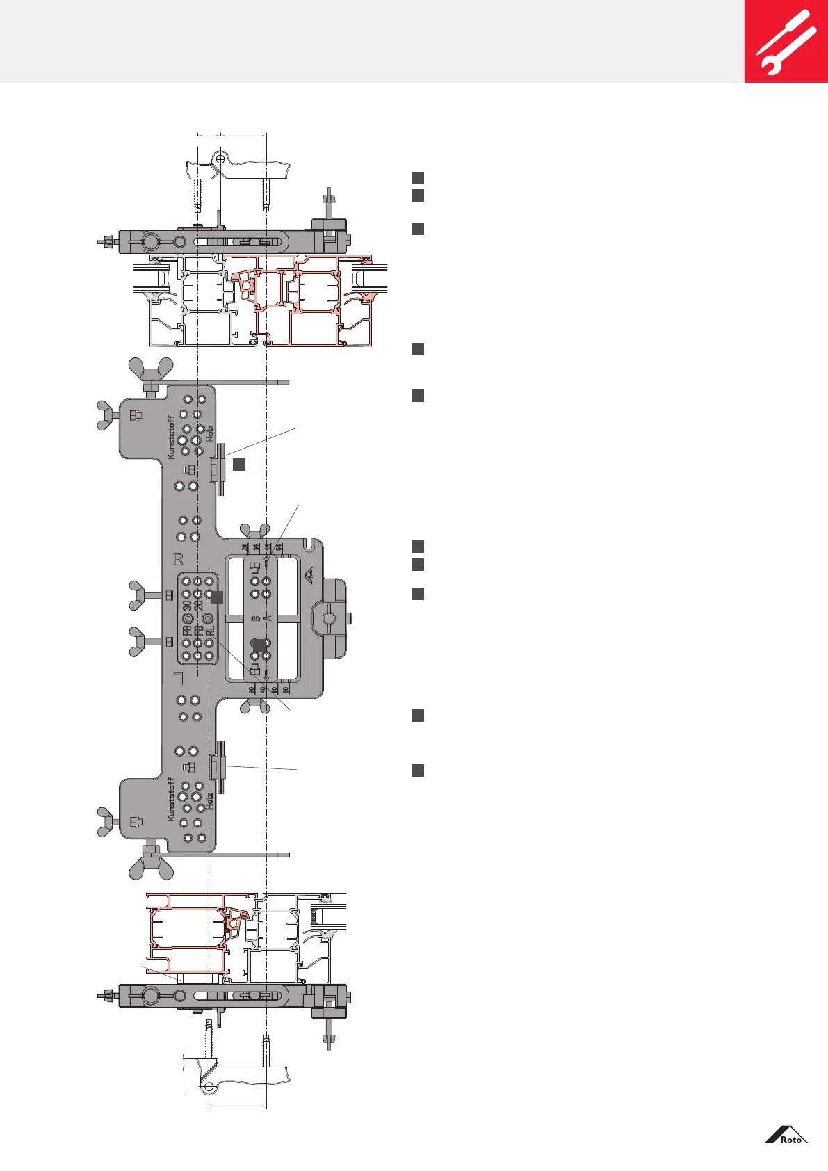
Predrilling sash/frame hinges
bzw. 30
20
40
20
50
0
12
7 bzw. 10
7 bzw. 10
50
50
Rahmenband 7/50 bzw. 10/50 Flügelband 20/40 bzw. 30/40
Rahmenband 7/50 bzw. 10/50 Flügelband 20/50 bzw. 30/50
12 mm Versatz zur Schattenfuge
0 mm Versatz zur Schattenfuge
Rahmenband 7/50 bzw. 10/50
Rahmenband 7/50 bzw. 10/50
Flügelband 20/40 bzw. 30/40
Flügelband 20/50 bzw. 30/50
If necessary, shorten
buffer-stop to shadow-
gap depth.
Shorten buffer-stop
tooverlap height.
2.
1.
Sash hinge 20/40
Frame hinge 16/50
and/or 21/50
Hinge
Hinge
Sash hinge-bearing
Frame hinge-bearing
Spacer for
shadow gap
Spacer for
shadow gap
Adjustment insert
hinge fixing
3.
Drilling insert frame/
sash hinge-bearing
50
21or16
20 40
and/or30
If necessary, use
second run-up
block for fitting
on the frame.
Installation of sash hinge 20/40 and/or 30/40
Drilling-jig adjustments
1.
Spacers for shadow gap profile related
2.
Adjustment insert hinge fixing Arrow points
to 40
3.
Drilling insert frame/sash
hinge-bearing
If necessary, use second run-up
blockfor fitting on the frame.
SW20
and/or SW30
Drill
4.
Fold together the folding sash
according to the diagram.
5.
Drill with Ø5mm drill
in adjustment insert hinge fixing
Drilling insert frame/sash hinge-
bearing
A
SW20
and/or SW30
Installation of frame hinge 16/50 and/or 21/50
Drilling-jig adjustments
1.
Spacers for shadow gap 4mm
2.
Adjustment insert hinge fixing Arrow points
to 40
3.
Drilling insert frame/sash
hinge-bearing
If necessary, use second run-up
blockfor fitting on the frame.
F.h-b
Drill
4.
Place the frame side of the folding
sash on the frame and align
(observe the chamber dimension).
5.
Drill with Ø5mm drill
in adjustment insert hinge fixing
in drilling insert frame/sash
hinge-bearing
A
F.h-b

Table of Contents

Related product manuals