EasyManua.ls Logo

Roto Patio Fold - Installing roller track with roll-support

Roto Patio Fold
92 pages
Print Icon
To Next Page IconTo Next Page
To Next Page IconTo Next Page
To Previous Page IconTo Previous Page
To Previous Page IconTo Previous Page
Loading...
Subject to change. Roto Patio Fold IMO_374_EN_v1 April 2015 55
Installation
Frame
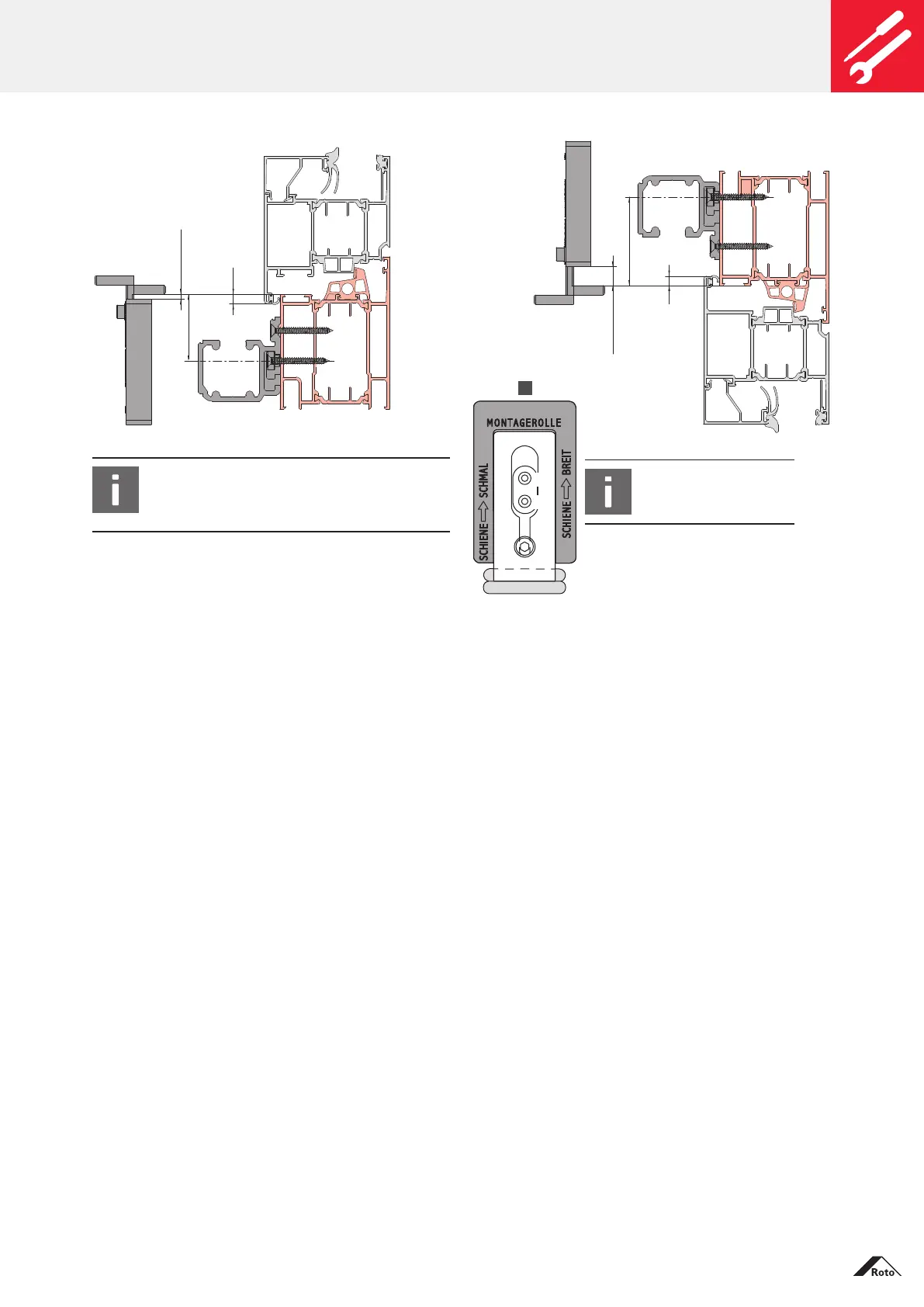
Installing roller track with roll-support
Bottom running
36+A
A
51+A
A
Dimension "Y"
Dimension "Y"
unten laufend
oben laufend
36+A
A
51+A
A
Dimension "Y"
Dimension "Y"
unten laufend
oben laufend
Top running
2.
B2
B1
NOTE!
Depending on the required
distance, choose B1 or B2.
NOTE!
For inserting the roll-support 632002 (optional accessory),
adjust the drilling jig accordingly and set the drill-hole
pattern with 3mm offset in line with the drawing.

Table of Contents

Related product manuals