EasyManua.ls Logo

SENTRON PAC4200 - Page 195

SENTRON PAC4200
284 pages
Print Icon
To Next Page IconTo Next Page
To Next Page IconTo Next Page
To Previous Page IconTo Previous Page
To Previous Page IconTo Previous Page
Loading...
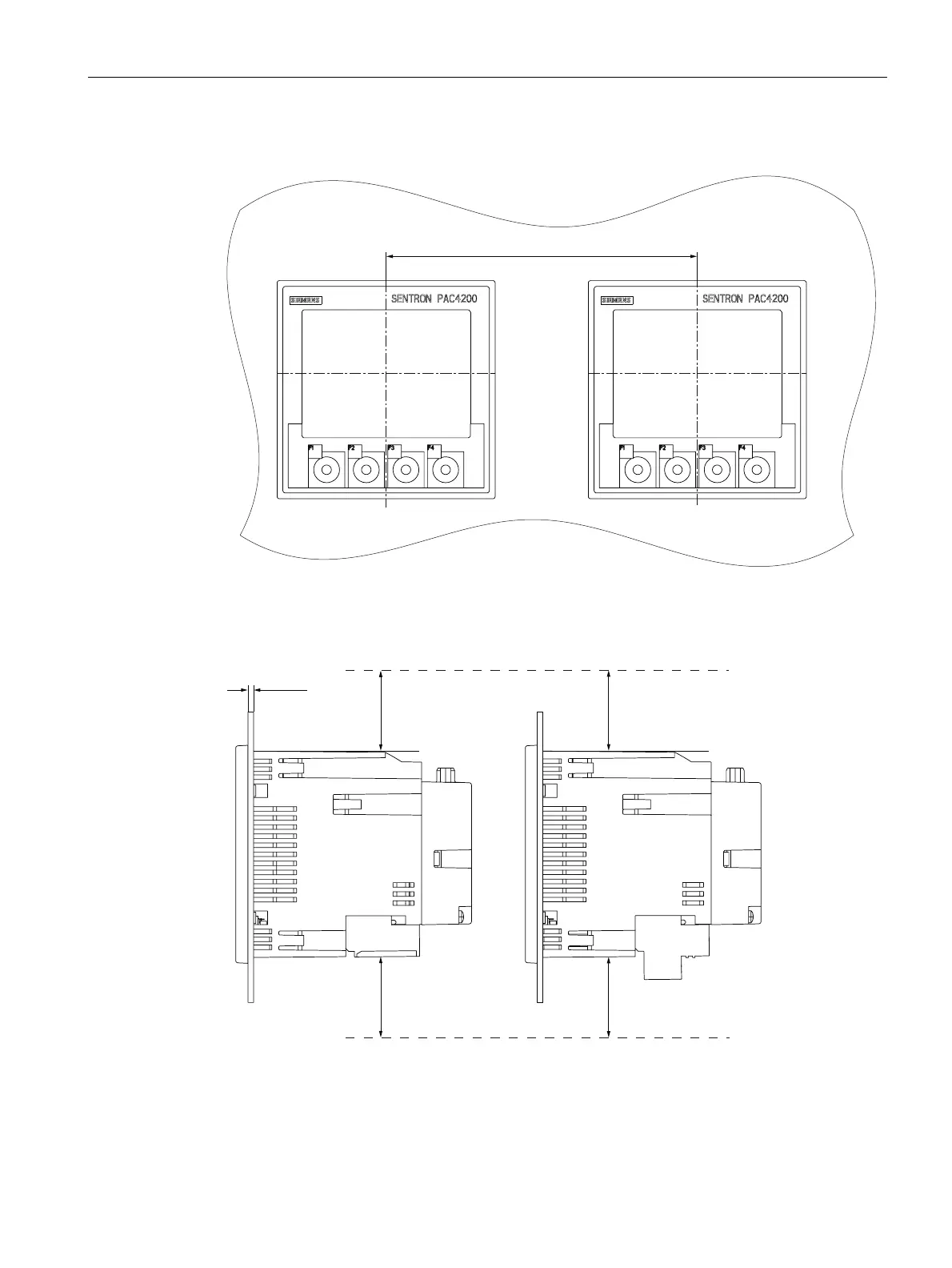
Dimension drawings
SENTRON PAC4200
System Manual, 09/2009, A5E02316180B-02
195
Clearance measurements

Figure 12-4 Side-by-side installation
Clearances
PD[PP




Figure 12-5 Clearances, device with screw terminal (on the left), device with ring lug terminal (on the
right)
The clearances specified must be maintained for cable outlets and ventilation.

Table of Contents