EasyManua.ls Logo

Siemens 6SL3120-2TE21-0AA3

Siemens 6SL3120-2TE21-0AA3
499 pages
To Next Page IconTo Next Page
To Next Page IconTo Next Page
To Previous Page IconTo Previous Page
To Previous Page IconTo Previous Page
Loading...
Line Modules Booksize
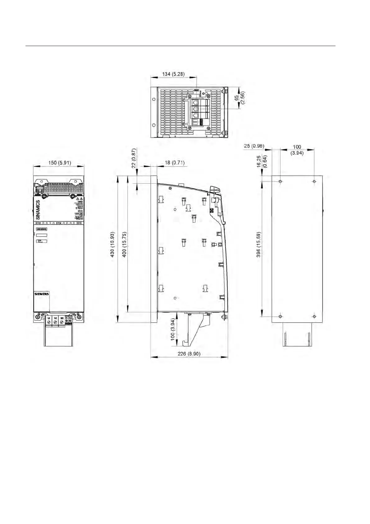
4.7 Basic Line Modules with cold plate
Booksize Power Units
262 Manual, (GH2), 04/2014, 6SL3097-4AC00-0BP6
Figure 4-65 Dimension drawing of 40 kW Basic Line Module with cold plate, all dimensions in mm and (inches)
Artisan Technology Group - Quality Instrumentation ... Guaranteed | (888) 88-SOURCE | www.artisantg.com

Table of Contents

Related product manuals