EasyManua.ls Logo

Siemens 6SL3120-2TE21-0AA3

Siemens 6SL3120-2TE21-0AA3
499 pages
To Next Page IconTo Next Page
To Next Page IconTo Next Page
To Previous Page IconTo Previous Page
To Previous Page IconTo Previous Page
Loading...
Line Modules Booksize
4.9 Smart Line Modules with external air cooling
Booksize Power Units
Manual, (GH2), 04/2014, 6SL3097-4AC00-0BP6
321
Insert plate or mounting plate
Threaded bolts M5 x 28
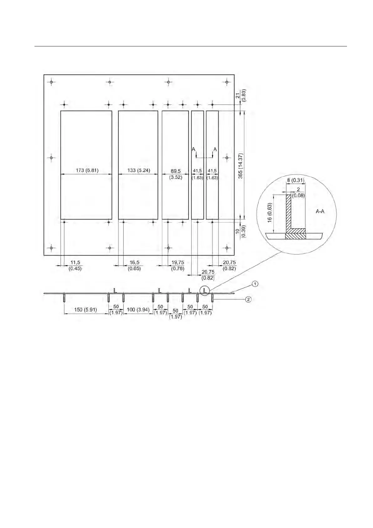
Figure 4-99 Example of a mounting plate for a drive line-up with external air cooling
When mounting it must be ensured that the component's seal is tight throughout. The cross-
pieces must have the appropriate stability. If necessary, the cross-pieces of the openings
must be reinforced.
In the example, the cross-pieces have been reinforced using brackets according to EN 755-
9. You are free to select the way that the bracket is attached to the insert.
Artisan Technology Group - Quality Instrumentation ... Guaranteed | (888) 88-SOURCE | www.artisantg.com

Table of Contents

Related product manuals