EasyManua.ls Logo

Siemens 6SL3120-2TE21-0AA3

Siemens 6SL3120-2TE21-0AA3
499 pages
To Next Page IconTo Next Page
To Next Page IconTo Next Page
To Previous Page IconTo Previous Page
To Previous Page IconTo Previous Page
Loading...
Motor Modules Booksize
6.2 Motor Modules with internal air cooling
Booksize Power Units
380 Manual, (GH2), 04/2014, 6SL3097-4AC00-0BP6
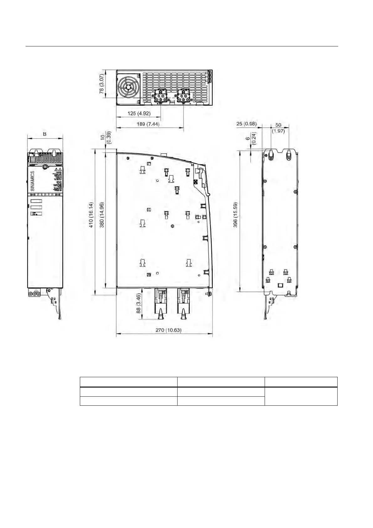
Figure 6-6 Dimension drawing of Motor Modules Booksize with internal air cooling 30 A and 2 x 18 A, all dimensions in
mm and (inches); example: Double Motor Module 2 x 18 A
Table 6- 8 Dimensions of Motor Modules Booksize with internal air cooling 30 A and 2 x 18 A
Motor Module
Order number
B [mm] (inches)
Single Motor Module 30 A
6SL3120-1TE23-0AAx
100 (3.94)
Double Motor Module 18 A
6SL3120-2TE21-8AAx
Artisan Technology Group - Quality Instrumentation ... Guaranteed | (888) 88-SOURCE | www.artisantg.com

Table of Contents

Related product manuals