EasyManua.ls Logo

Siemens 6SL3120-2TE21-0AA3

Siemens 6SL3120-2TE21-0AA3
499 pages
To Next Page IconTo Next Page
To Next Page IconTo Next Page
To Previous Page IconTo Previous Page
To Previous Page IconTo Previous Page
Loading...
Motor Modules Booksize
6.2 Motor Modules with internal air cooling
Booksize Power Units
Manual, (GH2), 04/2014, 6SL3097-4AC00-0BP6
381
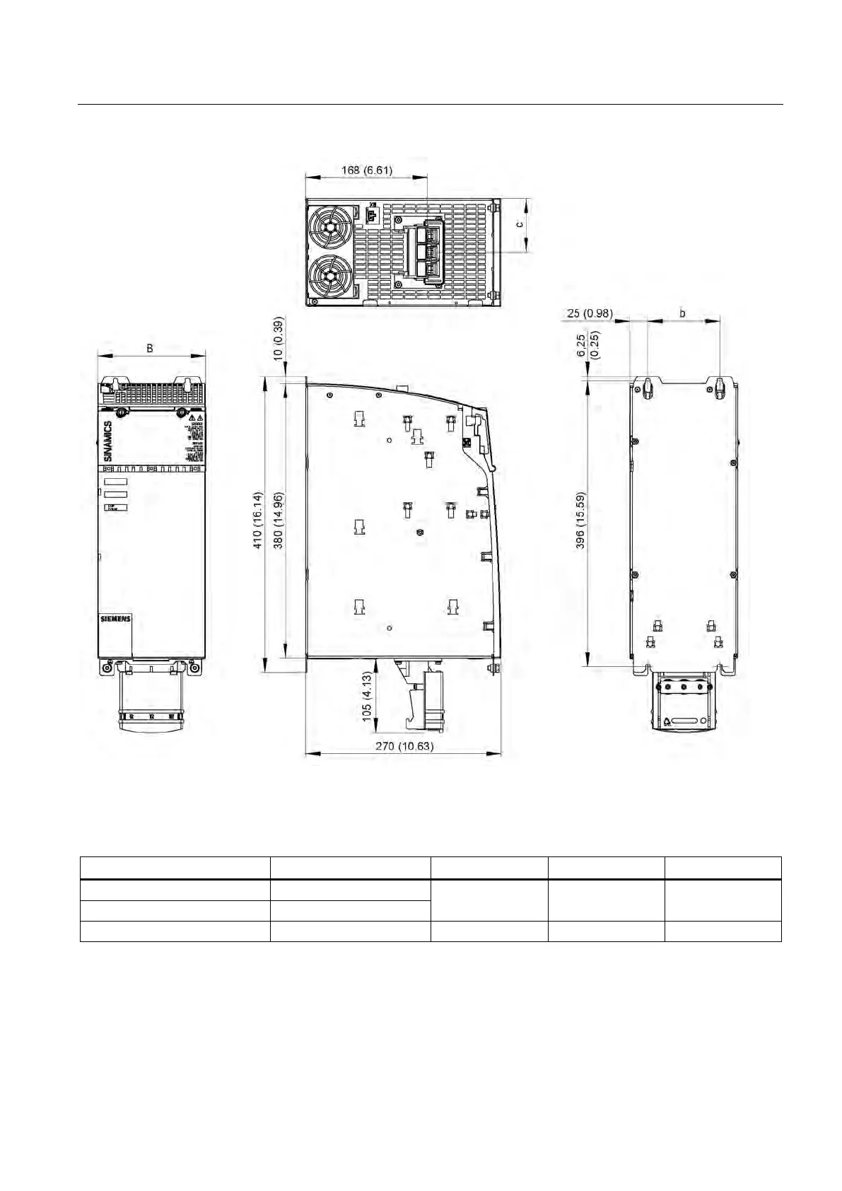
Figure 6-7 Dimension drawing of Motor Modules Booksize with internal air cooling 45 A to 85 A, all dimensions in mm
and (inches); example 45 A
Table 6- 9 Dimensions of Motor Modules Booksize with internal air cooling 45 A to 85 A
Motor Module
Order number
B [mm] (inches)
b [mm] (inches)
c [mm] (inches)
Single Motor Module 45 A
6SL3120-1TE24-5AAx
150 (5.91)
100 (3.94)
75 (2.95)
Single Motor Module 60 A 6SL3120-1TE26-0AAx
Single Motor Module 85 A
6SL3120-1TE28-5AAx
200 (7.87)
150 (5.91)
100 (3.94)
Artisan Technology Group - Quality Instrumentation ... Guaranteed | (888) 88-SOURCE | www.artisantg.com

Table of Contents

Related product manuals