EasyManua.ls Logo

Siemens 6SL3120-2TE21-0AA3

Siemens 6SL3120-2TE21-0AA3
499 pages
To Next Page IconTo Next Page
To Next Page IconTo Next Page
To Previous Page IconTo Previous Page
To Previous Page IconTo Previous Page
Loading...
Motor Modules Booksize
6.2 Motor Modules with internal air cooling
Booksize Power Units
382 Manual, (GH2), 04/2014, 6SL3097-4AC00-0BP6
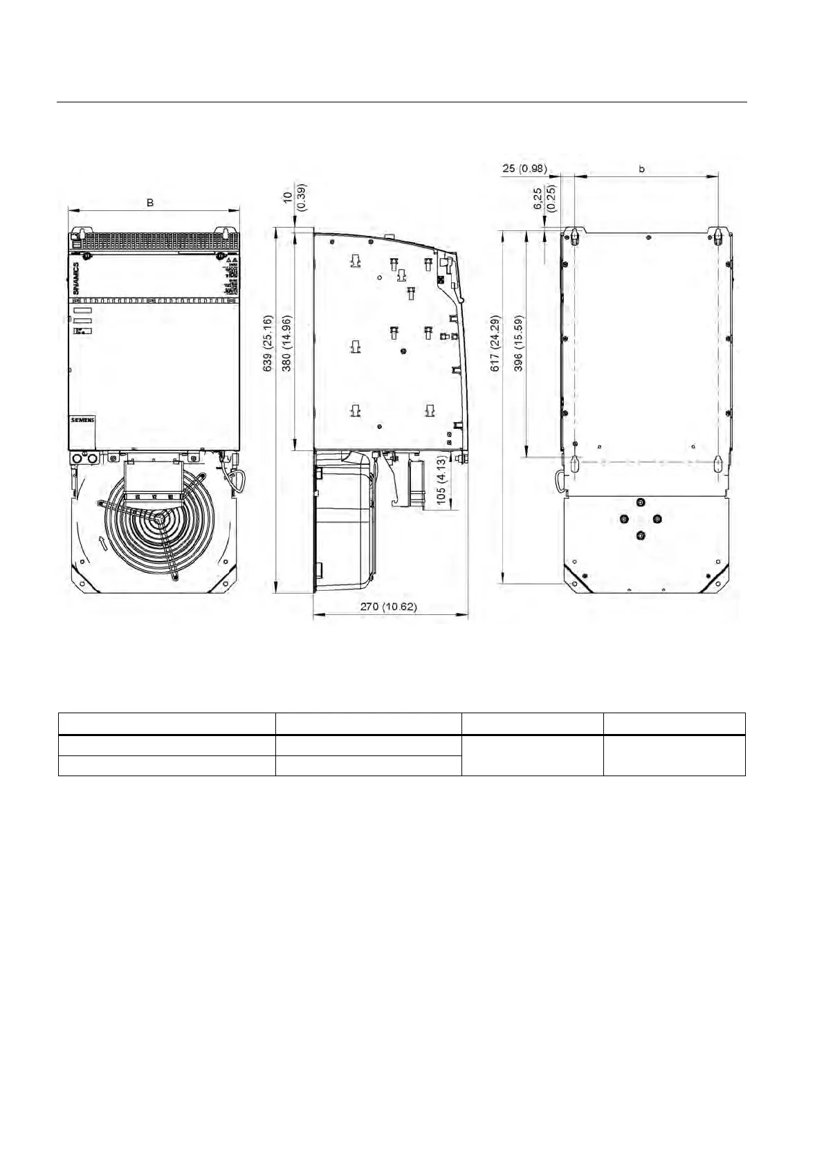
Figure 6-8 Dimension drawing of Motor Modules Booksize with internal air cooling 132 A and 200 A, all dimensions in
mm and (inches)
Table 6- 10 Dimensions of Motor Modules Booksize with internal air cooling 132 A and 200 A
Motor Module
Order number
B [mm] (inches)
b [mm] (inches)
Single Motor Module 132 A 6SL3120-1TE31-3AAx
300 (11.81)
250 (9.84)
Single Motor Module 200 A
6SL3120-1TE32-0AAx
Artisan Technology Group - Quality Instrumentation ... Guaranteed | (888) 88-SOURCE | www.artisantg.com

Table of Contents

Related product manuals