EasyManua.ls Logo

Siemens SIPROTEC 5 - Page 265

Siemens SIPROTEC 5
302 pages
Print Icon
To Next Page IconTo Next Page
To Next Page IconTo Next Page
To Previous Page IconTo Previous Page
To Previous Page IconTo Previous Page
Loading...
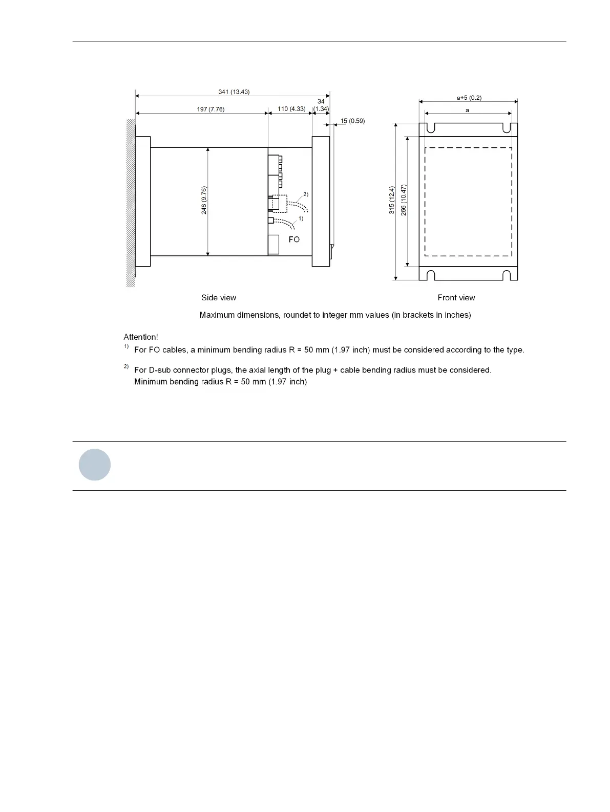
Surface-Mounted Devices with Integrated On-Site Operation Panel (Modular Device)
[dwosopin-070211-01.tif, 4, en_US]
Figure 6-14
1/3 Surface-Mounted Device with Integrated On-Site Operation Panel; Dimensions in the Side
and Front Views
i
i
NOTE
When mounting the surface-mounted devices, ensure that the holes are dimensioned for a screw size M6.
Technical Data
6.14 Assembly Dimensions
SIPROTEC 5, Hardware Description, Manual 265
C53000-G5040-C002-N, Edition 04.2022

Table of Contents

Other manuals for Siemens SIPROTEC 5

Related product manuals