EasyManua.ls Logo

STEMME S12 - Page 245

STEMME S12
290 pages
Print Icon
To Next Page IconTo Next Page
To Next Page IconTo Next Page
To Previous Page IconTo Previous Page
To Previous Page IconTo Previous Page
Loading...
Propeller Adjustment Report
Document number:
0901-05-S10-7
STEMME 11AP-V
DE.21G.0068
Page: 1 (of 2)
erstellt / bearbeitet: Freigabe: Ausgabe vom: ersetzt Ausgabe vom:
Nicht belegt!
Affeld Rutz 08.02.2013 21.06.2011
0901-05-7_S10-prop adj_report_10_11AP-V_08.02.2013.docx/ 23.03.17 13:19
Serial No. of Propeller: Order No.:
Drawing Up Reason:
Conformity Inspection
Repair or Inspection. Date of Finding Report:
Other:
No. Item or inspection to be performed / inspection results
performed
checked
1.
Center of gravity [mm/ in.]*, mass [g ] and radial mass-moment [gm]
m [g/ dr.] z [mm/ in.]
J
z
[gm] x [mm/ in.]
y [mm/ in.]
Propeller blade 1:
blank
1 AP-VB/ /
finished
Propeller blade 2:
blank
1 AP-VB/ /
finished
Blade No. 2 was marked red and installed on the corresponding side.
2.
Bearings (check appropriate block and complete items as indicated) P/N
Variation 1 Needle bearings with
Blade No. 1
Inner ring
inner rings and needles
Needles
Blade No. 2
Inner ring
(„red“ side) Needles
Variation 2 Needle bearings with needle cages
---
3.
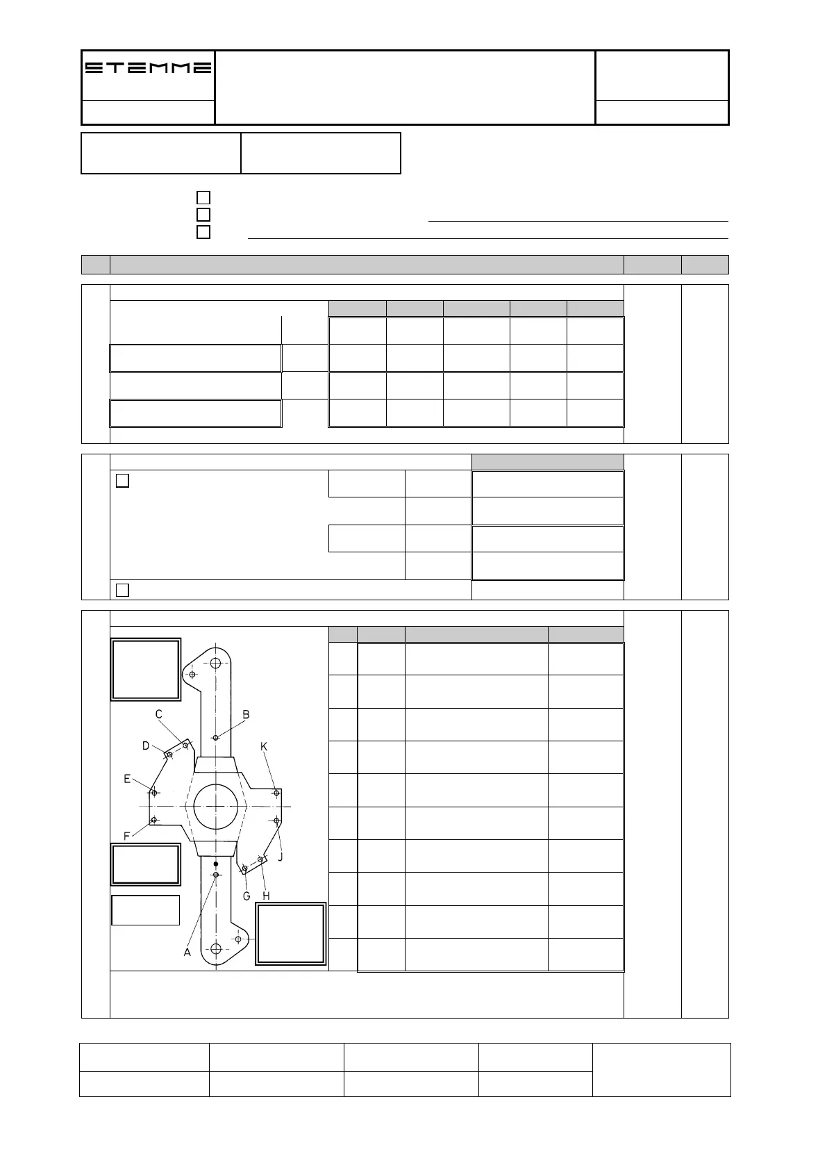
Balance weight washers [number and type]
[g]
Pos Number
P/N
Weight (sum)
A
B
C
D
E
F
G
H
J
K
Remarks:
Fork No.1:
Screw/Nut:
Hub No:
„Red“ Side
Fork No.2:
Screw/Nut:

Table of Contents

Related product manuals