EasyManua.ls Logo

Topcon X63 - Page 66

Topcon X63
92 pages
Print Icon
To Next Page IconTo Next Page
To Next Page IconTo Next Page
To Previous Page IconTo Previous Page
To Previous Page IconTo Previous Page
Loading...
Verifying X63/X62 Setup
X63/X62 Installation and Calibration Manual
4-6
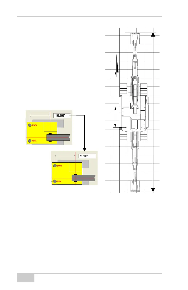
8. Subtract these two values and
divide by 2. For example:
If the tape measure value is
larger, increase the length in
3DMC by this amount (0.10).
If the Northing value recorded
by 3DMC is larger, shorten the
length in 3DMC by this
amount (0.10) (Figure 4-6).
9. Repeat these steps to verify the
correction.
Figure 4-6. “Rotate” Main Antenna on Body
N
Two Machine Positions over Two Points
15.50 15.30 0.20=2 0.10=

Related product manuals