EasyManua.ls Logo

Tormach 8L - Operator Console Schematic

Tormach 8L
118 pages
Print Icon
To Next Page IconTo Next Page
To Next Page IconTo Next Page
To Previous Page IconTo Previous Page
To Previous Page IconTo Previous Page
Loading...
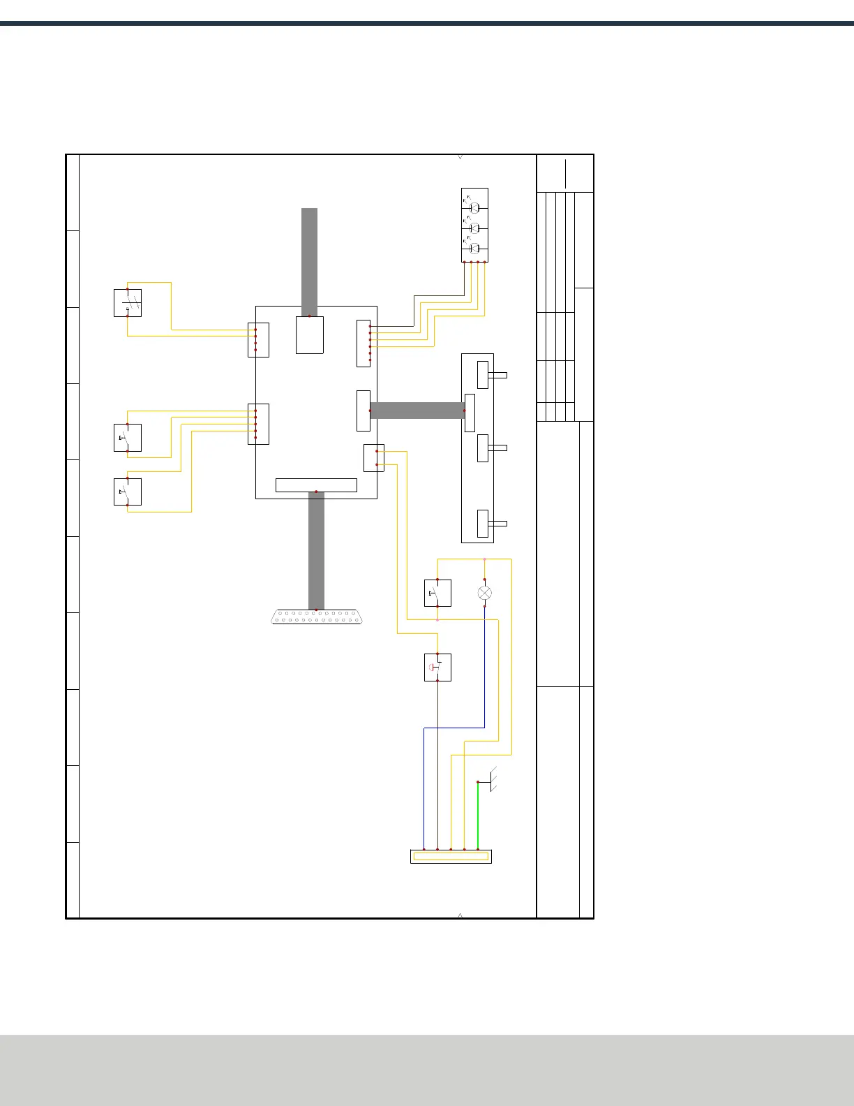
7.36 OPERATOR CONSOLE SCHEMATIC
REVISION
LOCATION:
Document realized with version :
CONTRACT:
SCHEME
CHANGESNAMEREV. DATE
1 2 3 4 5 6 7 8 9 10
02
+L1 Electrical Panel
Machine Schematic
0
2018.0.2.14
Tormach, Inc
1071 Uniek Dr.
Waunakee, WI 53597
User data 1 User data 2
0 2/20/2019 pdenhartog
SOLIDWORKS Electrical
-S2
5
6
3
4
-S2
Reset
37342
-S1
1
2
Emergency Stop
30462
-X1
1
2
3
4
5
402
404
GND1
401
403
-X2
39379
3
4
-S3
Cycle Start
37362
3
4
-S4
Feedhold
37363
PN 39376
Override Knobs
-LED1
5v
G
R
B
J13 J14
J11
J2
J3
J12
E-Stop Passthrough
RGB LED
H2R KeySwFront Panel Buttonas
Jog Pendant
USB
J4
Override Knobs
39146
Control Board
5v
G
R
B
FH
GND
CS
GND
KEY
GND
H2R
GND
-S5
Key Switch
©Tormach® 2021
Specifications subject to change without notice.
Page 104 UM10753: 8L Operator's Manual (Version 0321B)
For the most recent version, see tormach.com/support
7: ELECTRICAL SCHEMATICS

Table of Contents