EasyManua.ls Logo

Tormach 8L - Limit;Door Switches

Tormach 8L
118 pages
Print Icon
To Previous Page IconTo Previous Page
To Previous Page IconTo Previous Page
Loading...
7: ELECTRICAL SCHEMATICS
©Tormach® 2021
Specifications subject to change without notice.
Page 118 UM10753: 8L Operator's Manual (Version 0321B)
For the most recent version, see tormach.com/support
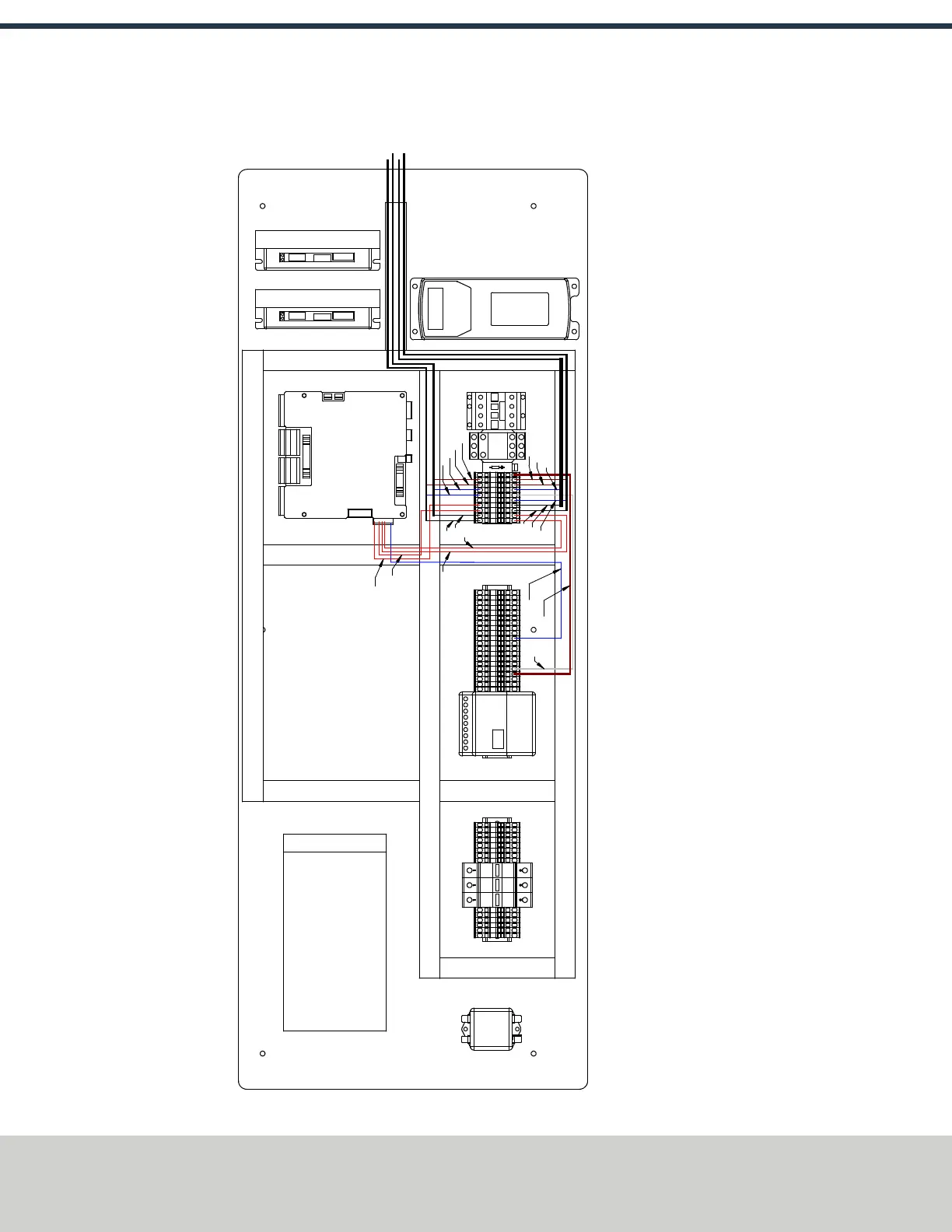
7.37.13 Limit/Door Switches
401
413
412
409
411
400
400
401
401
413
412
411
409
400
400
401
401400
414

Table of Contents