EasyManua.ls Logo

VARILITE VL4 - Test Procedures; Test Eproms; Description; Thumbwheel

Default Icon
238 pages
Print Icon
To Next Page IconTo Next Page
To Next Page IconTo Next Page
To Previous Page IconTo Previous Page
To Previous Page IconTo Previous Page
Loading...
C
HAPTER
3. M
AINTENANCE
P
ROCEDURES
3-3
02.9628.0010 CONFIDENTIAL
7-Oct-97
3.1 Test Procedures
3.1.1 Test EPROMs
3.1.1.1 Description
The
VL4
luminaire has the ability to use diagnostic EPROMs to aid in
troubleshooting. After installation of the EPROMs on the lamp control
assembly’s universal control board (refer to Test Setup paragraph), the
luminaire can perform self-tests to help determine a faulty assembly. The
self-tests are activated by setting the thumbwheel address to a
corresponding self-test.
3.1.1.2 Thumbwheel
The two least significant digits of the thumbwheel are defined as the test
number. This number is used to select the required test. The most
significant digit is defined as the parameter for the selected test. Not all
tests have selectable parameters, but on those that do, it will alter an aspect
of the test. For example, speed of oscillation during a movement test.
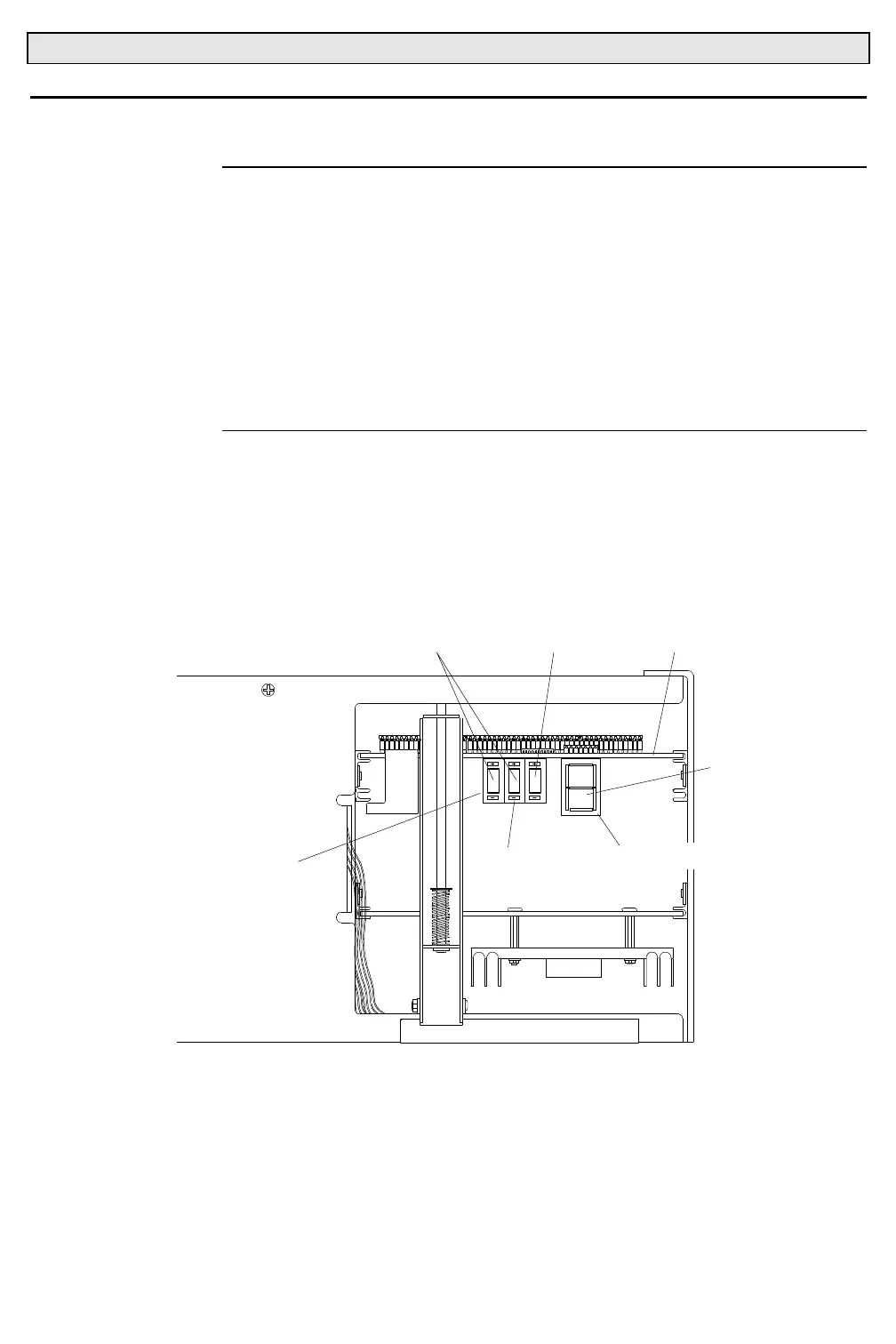
THUMBWHEEL
TEST NUMBER PARAMETER
SEVEN-SEGMENT
DISPLAY
LAMP CONTROL
ASSEMBLY
NUMBERS READ UPSIDE
INSTALLED IN CHASSIS AS
DOWN WHEN BOARD IS
SHOWN
ERROR
CODES
DISPLAYED

Table of Contents