EasyManua.ls Logo

Vertiv Liebert CRV - Page 192

Vertiv Liebert CRV
194 pages
Print Icon
To Next Page IconTo Next Page
To Next Page IconTo Next Page
To Previous Page IconTo Previous Page
To Previous Page IconTo Previous Page
Loading...
REV : 2
REV DATE : 3/17
DPN003954
Page :3/3
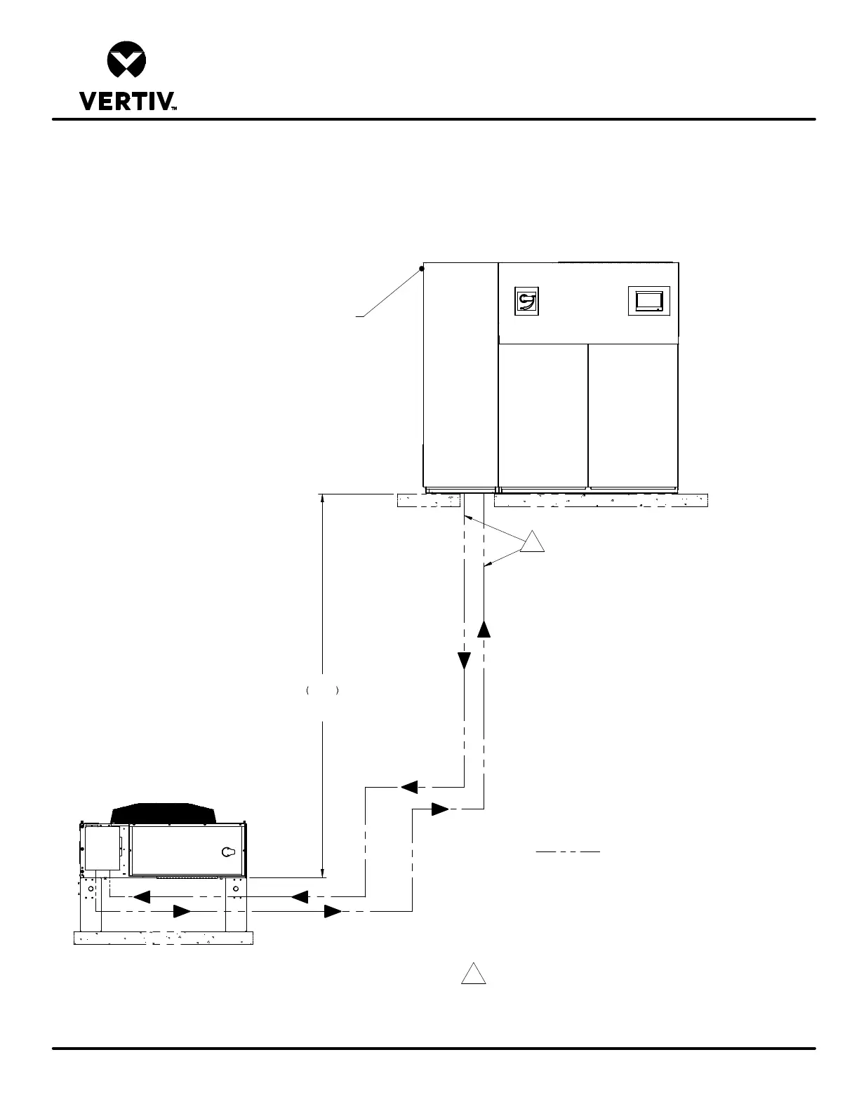
LIEBERT MC CONDENSER
Form No.: DPN001040_REV4
AIR COOLED PIPING SCHEMATIC
Notes:
1. Pitch horizontal hot gas piping at a minimum of
1/2" per 10 feet (42mm per 10m) so that gravity will
aid in moving oil in the direction of the refrigeration flow.
2. This Configuration is not valid for Liebert MC with Lee-Temp
or unheated receiver.
3. Single circuit condenser shown.
4. Unit piping entrance varies by unit and may be through
the top of the unit.
5. Indoor unit may be Liebert DS, DSE, PDX, or CRV and
is shown for reference only while demonstrating proper
pipe and unit/condenser height differences.
Indoor Unit
Field piping
Gas
Liquid
CONDENSER BELOW INDOOR UNIT
4
Liquid
Gas
Gas
15'
4.6m
Maximum
Vertical Drop

Table of Contents

Other manuals for Vertiv Liebert CRV

Related product manuals