EasyManua.ls Logo

Waters ACQUITY UPC2 - Page 71

Default Icon
110 pages
Print Icon
To Next Page IconTo Next Page
To Next Page IconTo Next Page
To Previous Page IconTo Previous Page
To Previous Page IconTo Previous Page
Loading...
November 16, 2016, 715004521 Rev. C
Page 71
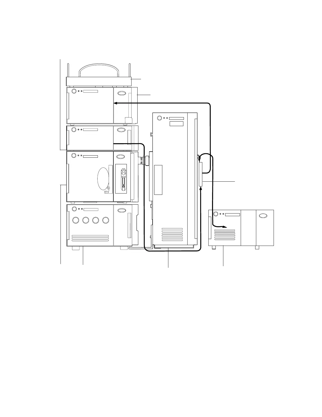
Figure 5–27: Core 4 configuration with a PDA, ELSD, and splitter
The following table describes final tubing connections and does not list factory-installed tubing
connections.
73
Solvent
tray
ELSD
CM-30S
PDA
ccBSM
SM-FL
ccManager
ELSD splitter
module
mounted on the
CM-30S
2
1
3

Table of Contents

Other manuals for Waters ACQUITY UPC2

Related product manuals