EasyManua.ls Logo

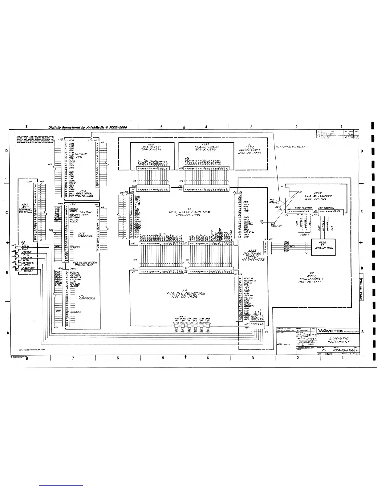
Wavetek 75 - Schematic Instrument

Default Icon
144 pages
Print Icon
To Next Page IconTo Next Page
To Next Page IconTo Next Page
To Previous Page IconTo Previous Page
To Previous Page IconTo Previous Page
Loading...
A3
PCA
,
u
PROC/APB
MEM
//OO- 00
-
/389
REV ECN
BY
DATE
APP
TMlS DOOYENT CONTAINS PROPRIETARY INFOR
MAINTENANCE WlTHWT WRITTEN AUTHORIZATION
AlA3
PCA,
KEYBOARD
D
1208
-CO
-
/3
76
FRO/VT
PANEL
1206 -00-/775
D
/208-00-
/N9
1208-00-/772
PCA
RS232
WDN
//00-00-
/677
&%ST
TRIG
WE
SMK
SYNC
SUM
ARB
REMOVE
ALL
BURRS
AND BREAK SHARP EDGES
A
fEL7m
-
-
--
-
A
SCHEMAT/C
XXX
010
ANGLES
1
/NSTPUMENT
NOTE UNLESS OTHERWISE SPECIFIED
8
K%%wIiV-
8
1
7
I
6
5
4
4
I
3
I
2
1
A4
PCA
,
PL
L
/WAVEFORM
//OO-
00
-
/456

Table of Contents

Related product manuals