EasyManua.ls Logo

WEG CFW300 - Identification Label; Description of the CFW300 Identification Label

WEG CFW300
124 pages
Print Icon
To Next Page IconTo Next Page
To Next Page IconTo Next Page
To Previous Page IconTo Previous Page
To Previous Page IconTo Previous Page
Loading...
CFW300 | 7
English
General Information
Table 2.2: Available options for each field of the nomenclature according to the rated current and voltage of the inverter
Frame Size
Output Rated
Current
N° of Phases
Rated
Voltage
Brake
A
01P6 = 1.6 A
S = single-phase power supply
1 = 110...127 Vac
NB
02P6 = 2.6 A
04P2 = 4.2 A
06P0 = 6.0 A
01P6 = 1.6 A
2 = 200...240 Vac
02P6 = 2.6 A
04P2 = 4.2 A
06P0 = 6.0 A
07P3 = 7.3 A
01P6 = 1.6 A
T = three-phase power supply
02P6 = 2.6 A
04P2 = 4.2 A
06P0 = 6.0 A
07P3 = 7.3 A
01P6 = 1.6 A
D = DC power supply 3 = 280...340 Vdc
02P6 = 2.6 A
04P2 = 4.2 A
06P0 = 6.0 A
07P3 = 7.3 A
B
10P0 = 10.0 A B = single-phase or three-phase power supply or DC
2 = 200...240 Vac or
280...340 Vdc
DB
15P2 = 15.2 A T = three-phase power supply or DC
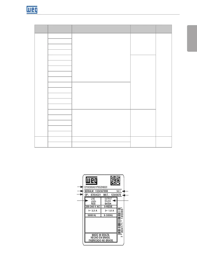
2.4 IDENTIFICATION LABEL
The identification label is located on the side of the inverter. For further details on positioning
the label, refer to Figure A2 on page 110.
Manufacturing date
(14 corresponds to the
week and I to the year)
Rated output data
(voltage, current
and frequency)
WEG stock item
Production order
Rated input data
(voltage, current and
frequency)
Serial number
Model (Inverter
intelligent code)
CFW300 Side Label
Figure 2.4: Description of the CFW300 identification label

Table of Contents

Other manuals for WEG CFW300

Related product manuals