EasyManua.ls Logo

DEV 2190 - IRD Controlled Switch Options and Extensions; Redundant Amplifier Options

Default Icon
101 pages
Print Icon
To Next Page IconTo Next Page
To Next Page IconTo Next Page
To Previous Page IconTo Previous Page
To Previous Page IconTo Previous Page
Loading...
User Manual DEV 2190
12 Copyright DEV Systemtechnik GmbH 2009-2017
3.1.6 IRD Controlled Switch Options and Extensions
The output port of an amplifier module can be routed to one of the two or four
inputs of an IRD controlled switch to feed this signal to a number of IRDs. IRD
controlled switch option extensions can be applied in addition to feed a splitter in
parallel with one of the two or four input signals of an IRD controlled switch option.
For the available IRD controlled switch options and IRD controlled switch option
extensions, for possible configurations and for the restrictions, please refer to the
corresponding technical data section of the DEV 2190 spec sheet.
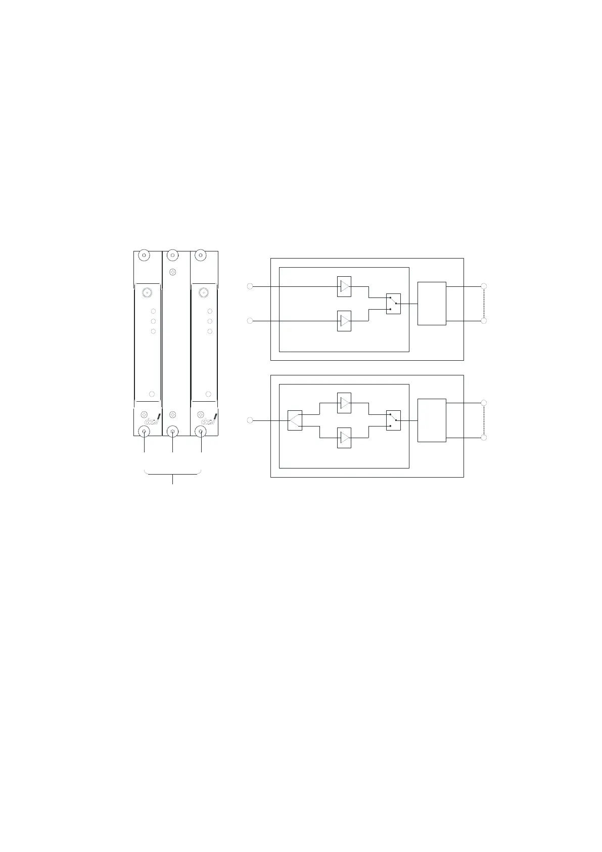
3.1.7 Redundant Amplifier Options
Main Amplifier
Module
Redundancy
Sw itch
Module
External
Am plifier Outputs,
Splitters or IRD
controlled Sw itches
Output 1
Output N
Redundancy Unit
Option 23
1:2 Splitter
Main Amplifier
Module
Backup A mplifier
Module
Input
Redundancy
Sw itch
Module
Output 1
Output N
Redundancy Unit
Option 24
Input
Main
Input
Backup
External
Am plifier Outputs,
Splitters or IRD
controlled Sw itches
Backup A mplifier
Module
Redundancy
Sw itching
Module (S i)
Main
Am plifier
Module (M i)
Backup
Am plifier
Module (B i)
Redundancy Unit (i)
L-B and Am p.
Mon
Bia s
RF
Op.
Bia s
L-B and Am p.
Mon
Bia s
RF
Op.
Bia s
Redundant amplifier options are offered for the DEV 2190 to realize the failsafe
operation of L-Band amplifier applications.
Redundant amplifier options are available with two RF inputs (Option 23, i.e.
possibly an external 1:2 splitter needs to be applied) or with one RF input
(Option 24, i.e. the single input signal is split via an internal 1:2 splitter).
Any Option 23 and any Option 24 requires three vertical slots at the front side of
the chassis: Per redundant amplifier option a main amplifier module, a backup
amplifier module, and a redundancy switch module are forming a redundancy unit.
The output port of both amplifier modules is routed to the two input ports of the
redundancy switch module. The output port of the redundancy switch module
feeds the external (amplifier option) output ports, the splitters, or the IRD
controlled switches.
For the available redundant amplifier options, for possible configurations and for
the restrictions, please refer to the corresponding technical data section of the
DEV 2190 spec sheet.
In a redundant amplifier application, e.g. with Option 24, the single input signal is
split to feed the inputs of the two amplifier modules. The output of the two
amplifier modules feed the inputs of the redundancy switch module, which output
forms the output of the redundancy unit. This output is routed e.g. to the input of a
splitter being part of a distribution option.

Table of Contents

Related product manuals