EasyManua.ls Logo

DSE DSE5510 - INSTALLATION INSTRUCTIONS; 8 INSTALLATION INSTRUCTIONS

DSE DSE5510
78 pages
Print Icon
To Next Page IconTo Next Page
To Next Page IconTo Next Page
To Previous Page IconTo Previous Page
To Previous Page IconTo Previous Page
Loading...
DSE Model 5510 Autostart Control and Instrumentation System Operators Manual
057-015 5510 OPERATING MANUAL ISSUE 11 07/07/09 AM 47
8 INSTALLATION INSTRUCTIONS
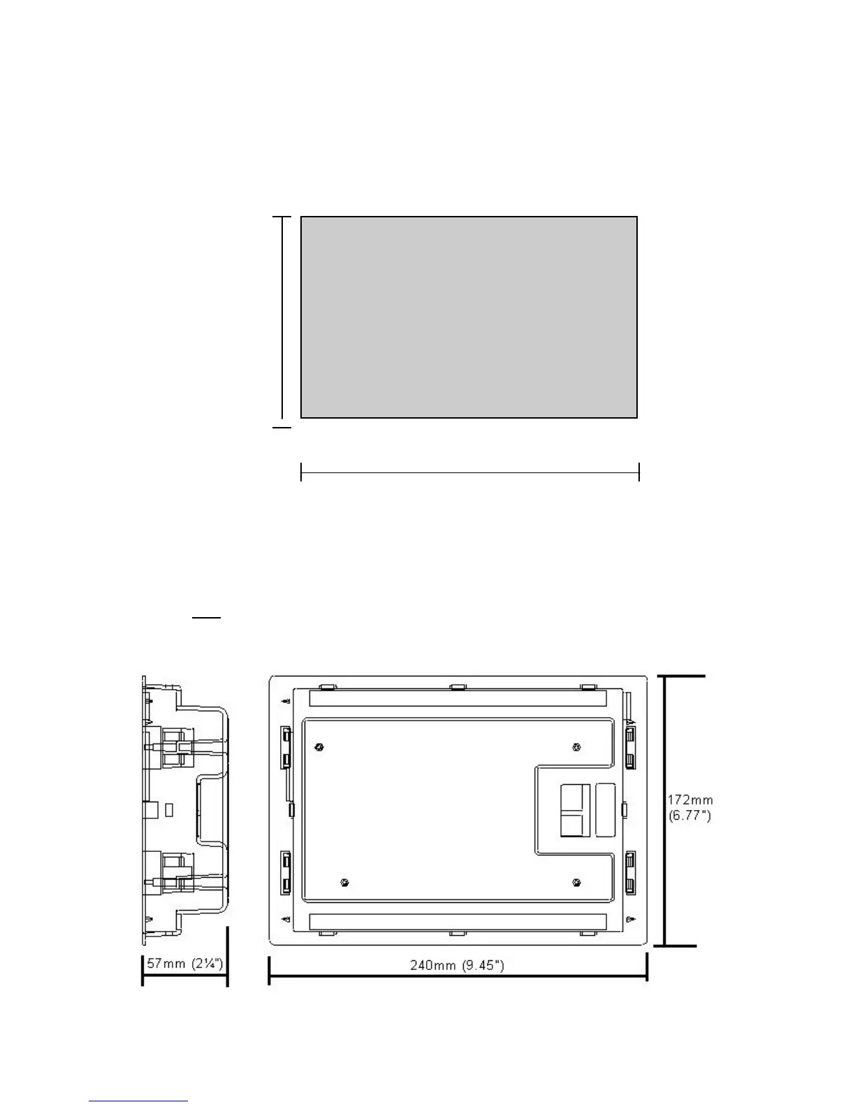
The model DSE 5510 Module has been designed for front panel mounting. Fixing is by 4 clips for
easy assembly.
8.1 PANEL CUT-OUT
220.00mm
(8.7”)
Maximum panel thickness 8mm (0.3”)
In conditions of excessive vibration, the module should be mounted on suitable anti-vibration
mountings.
8.2 COOLING
The module has been designed to operate over a wide temperature range -30ºC to +70ºC.
Allowances should be made for the temperature rise within the control panel enclosure. Care should
be taken NOT to mount possible heat sources near the module unless adequate ventilation is
provided. The relative humidity inside the control panel enclosure should not exceed 93%.
8.3 UNIT DIMENSIONS
Panel cutout 220mm x 160mm ( 8.7” x 6.3”)
160.00mm
(6.3”)

Table of Contents

Related product manuals