EasyManua.ls Logo

Enertech AV Series - Flushing Diagram - Hot Water Tank

Enertech AV Series
76 pages
Print Icon
To Next Page IconTo Next Page
To Next Page IconTo Next Page
To Previous Page IconTo Previous Page
To Previous Page IconTo Previous Page
Loading...
Enertech Global, LLC 31
AV : MD/ME - Rev. A Models
Installaon and Operaons Manual

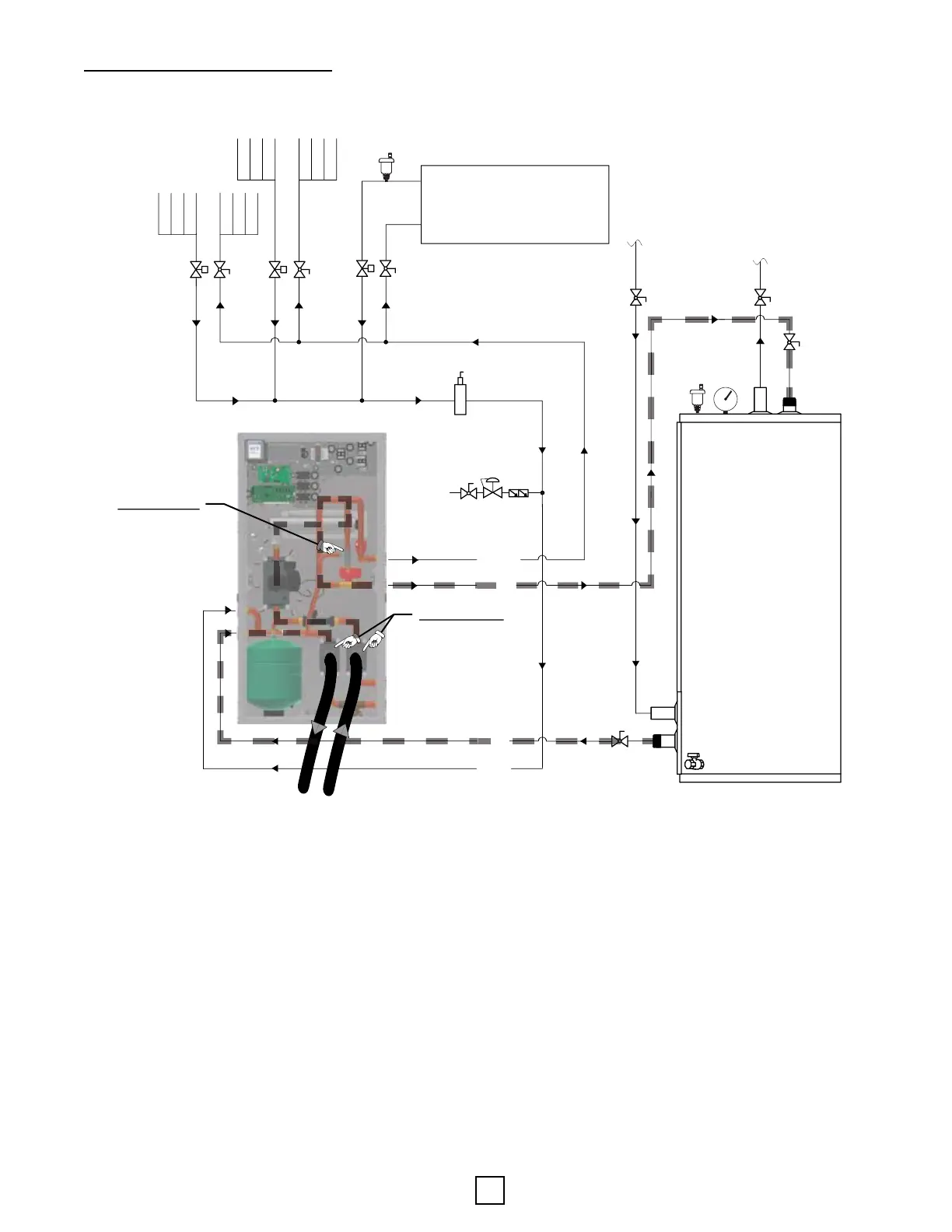
Secon 5: Unit Piping
RADIANT
FLOOR
HEATING
ZONE 2
RADIANT
FLOOR
HEATING
ZONE 3
DHW OUT
LOAD OUT
DOMESTIC
HOT
WATER
DOMESTIC
COLD
WATER
HOT
COLD
LOAD
IN
LOAD
OUT
LOAD IN
DHW IN
*FLUSHING CART
(USE AGFP DOUBLE 0-RING
x CAM ADAPTERS)
FLUSH BLOCKS
VALVE “OFF” THE
BOTTOM PORT
BYPASS VALVE
SET TO 4.5 PSI
HYDRONIC AIR HANDLER
OR PANEL RADIATIOR
ZONE 1
TURBOMAX 65
WATER HEATER
FOR TYPICAL
RESIDENTIAL
APPLICATIONS
MAKE-UP WATER OR
GLYCOL FEEDER
*FLUSHING BUCKET
(USE AGAMGH DOUBLE 0-RING x
MALE GARDEN HOSE ADAPTERS)
DHW
DHW

Table of Contents

Related product manuals