EasyManua.ls Logo

Enertech AV Series - Diagram: Heating;Cooling - Multiple Fan Coils - no Radiant (All Fan Coils Are Enertech MPH Series)

Enertech AV Series
76 pages
Print Icon
To Next Page IconTo Next Page
To Next Page IconTo Next Page
To Previous Page IconTo Previous Page
To Previous Page IconTo Previous Page
Loading...
Enertech Global, LLC 41
AV : MD/ME - Rev. A Models
Installaon and Operaons Manual
FA
FA
TB1
R
C
JMP1
C1
D1
RESET
CB1
F1
K 1
TB2
MX R
MX C
M6
M2
TB3
4
Z
O
N
E
K 2
M6
M2
2
3
M6
M2
Z
O
N
E
Z
O
N
E
TB4
TB5
K 3 K 4
M6
M2
M6
M4
M2
M1
Z
O
N
E
D
M
P
R
O
A
TB6
1
K 5
TB7
K 7
M6
M4
M2
M1
NC
NO
C
E
B
D
TB8
K 8
K 9
G
Y2
O
B
W 2
E
RH
RC
LI NK
RH
H
V
A
C
S
Y
S
T
E
M
TB9
K 10 K 11
K 12 K 13
JMP3
K 14
W
E
C ONT R OLS INC .
E nglis htown, NJ
HVAC ZONE
C ONT R OL
S YS TE M
U Z C 4
SA S
SA S
O AS
O AS
RA S
RA S
S
E
N
S
O
R
S
TB1 1
TB1 0
T
S
T
A
T
4
C
W1
W 2
Y2
E
C
W1
W 2
Y2
R
G
E
TB12
T
S
T
A
T
3
C
W1
W 2
Y2
R
G
E
T
S
T
A
T
2
TB13
W 2
R
G
T
S
T
A
T
1
TB14
CO
CO
ON E
ZON E
AUX R
TB15
2
2
EMERGENCY
NORMAL
RA S
SA S
O AS
ST ATU S
LI MIT
LI MIT
LI MIT
ZO NE
ZO NE
ZO NE
ZO NE
OP EN
OP EN
OP EN
OP EN
3
1
2
4
OP ENOA DM PR
DMPR
BYP ASS
AUX RE LA Y
FAN
CO MP RE SS OR 1
CO MP RE SS OR 2
EM ER GE NC Y
W2 H EA T
VAL VE ‘ O’
RE V
W1 H EA T
LED12
LED13
LED14
LED15
LED16
LED17
LED9
LED10
LED18
LED2
LED3
LED1 1
LED4
LED1
LED6
LED5
LED7
LED8
RE SE T
CP U
TIM ER
RE SE T
OFF
SAS
ON
<
>
GA S
FAN
HYDRO
<
>
90
PUR GE
180
s
s
<
>
OA S
STAG ES
TMR
<
>
DF
HP
CONV
< >
HP
GA S
SYS TEM
>
>
OFF
FAN PRG
ON
<
>
OFF
R
%
50
ON
<
>
RA
<
AUX RL Y
>
DA
AN Y
<
FA N C
>
Z
1
OF F
<
ZD L
>
ON
OFF
<
RA S
>
ON
0
RA LM T
+10
>
<
HC
HP
>
TSTAT
>
O
<
RV
>
B
1
2
CS#
>
<
BANK1
BANK2
R1
STA GING
TIMER
OAS
7
OFF
14
21
28
35
42
37
34
40
43
46
49
52
R2
COOLING
LIMIT
1ST
R3
LIMIT
STAGE
HEATING
DIFFE RENTIAL
MULTI
STAGE
HEAT
R4
J1
120
110
130
140
150
160
170
12
19
26
33
40
47
5
D6
D5
D4
R7
R6
R5
D3
JMP 2
D10
D7
D8
D9
R10
R11
R9
R8
D14
D13
D12
D11
R15
R12
R13
R14
D16
D15
R17
R16
R18
R63
R55
R53
R52
R54
R61
R60
Z1
R56
R57
R 19
C2
C54
D2
R 20
R 21
R 22
A
U
X
R
L
Y
C25
C26
C27
R65
R66
R67
R68
R71
R70
R69
R72
R73
R28
R27
R26
R25
R24
R23
D17
D18
D19
D20
D21
D22
R64
C48
C47
C46
C51
C50
C49
C52
SW 3
R134
R128
R129
R130
R130
R132
R133
R135
R127
R126
R125
R124
R123
R122
U17
U18
U19
C42
C41
C40
C45
C44
C43
R121
R120
R119
R118
R117
R116
R115
R114
R113
R112
R111
R110
R109
R108
R107
R106
D23
C3
R29
R30
R31
R32
R33
R34
R35
R36
R37
R38
R39
R40
R41
R42
R43
R44
R46
R45
R50
C28
C29
C30
C31
C32
C33
C5
C4
U2
U3
U4
R74
R75
R76
R77
R78
R79
R88
R87
R86
R85
R84
R83
R82
R81
R80
C34
C35
C36
C16
C6
C20
U6
U7
U5
R98
R97
R96
R95
R93
R94
R92
R91
R90
R89
C39
C38
C37
C23
C24
U8
U9
R105
R104
R103
R102
R101
R100
R99
J2
C8
C7
C 10
C 9
C 11
C 12
C 13
C 14
C 15
U15
U14
R47
C17
C21
C 22
C 19
U1
Y1
SW 2
SW 1
R51
R50
R48
R 49
R58
C18
D
14
18
17
SWITCH LEGEND
D24
R 52
LED19
GROUND FAULT
C53
TRL
C
C
W1
E
Y2
O
Y1
B
O
Y1
B
O
Y1
B
Y1
O
B
3 heat/2 cool
Heat Pump
Thermostat
Enertech
MPH
Fan Coil
CAUTION
TRANSFORMER MUST BE REMOVED FROM EACH
FAN COIL TO AVOID PHASING ISSUES BETWEEN
FAN COILS AND THE ZONE PANEL. WIRING
SHOWN FOR ENERTECH MPH FAN COILS, WHICH
USE HEAT PUMP THERMOSTATS.
RC
EM INDOOR
MODULE
ZONE VALVE NOTES:
The EWC zone panel opens all dampers
when no zones are calling, which is ne
for dampers, but is not optimal for zone
valves. When using zone valves on the
output (left side), zone 4 should be used
as a control zone to make sure that the
zone valves will be closed when there is
no thermostat call. For addtional zones,
use a 2-zone expansion panel, Enertech
part # AZZXM-2.
W/Y
C
Taco
Geo Sentry
Zone Valve
W/Y
C
W/Y
C
M4
M1
M4
M1
M4
M1
M4
M1
24V
24V
THERMOSTAT
AND FAN COIL
CONNECTIONS
FOR UP TO
3 FAN COILS
(NOTE 2)
DIAL SETTINGS:
STAGING = OFF
COOLING LIMIT = 43
1ST STAGE LIMIT = 140
MULTI-STAGE = 26
DIP SWITCH SETTINGS:
SYSTEM = GAS
HP = CONV
FAN PRG = OFF
PURGE = 90S
STAGES = TMR
50% RULE = OFF
SAS = OFF
FAN = GAS
TSTAT = HP
CS# = 1
RV = O
ZDL = OFF
AUX RLY = DA
RAS = OFF
RA LIMIT = 0
FAN CTRL = ANY
NEMA enclosure with two 75VA
transformers (Enertech part #
11450000001) wired in parallel
L1
L2
230V
connections
L1
L1
L2
L2
R
R
C
C
Ground
C1
W1
O
Y1
Y2
R
G
C
W1
O
Y1
Y2
R
G
C1
W1
O
Y1
Y2
R
G
C
W1
O
Y1
Y2
R
G
C1
W1
O
Y1
Y2
R
G
C
W1
O
Y1
Y2
R
G
Zone Valves
at Fan Coils
Y1
W 1
NOTE 2
R
G
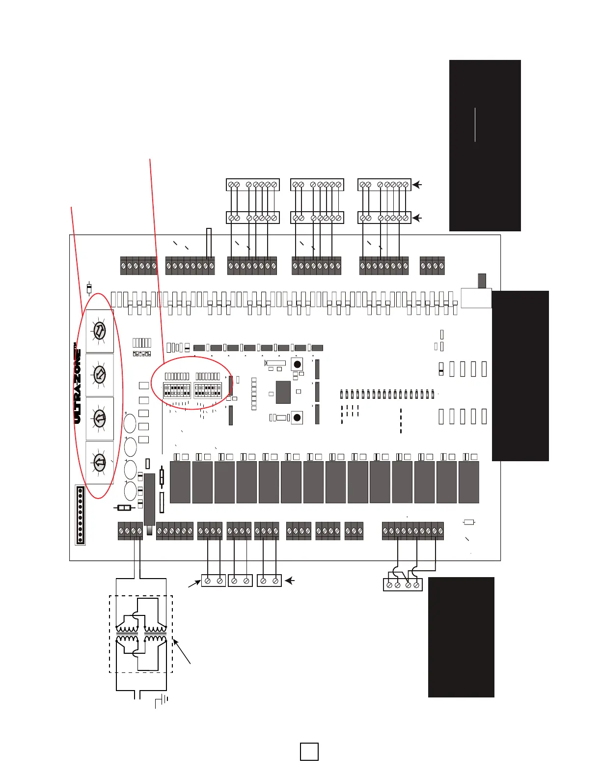
Secon 8: Field Wiring
Diagram HTGCLG-5: Heang/Cooling
Mulple Fan Coils - No Radiant
(All fan coils are Enertech MPH series)
CAUTION
ALL FAN COILS MUST BE 2 TONS OR LARGER FOR
THIS APPLICATION. IF ANY FAN COIL IS SMALLER
THAN 2 TONS, A BUFFER TANK IS REQUIRED
(USE DIAGRAM HTGCLG-7 AND FIGURE 16C).
NOTICE
THE EM UNIT TERMINALS ARE
POLARITY SENSITIVE. TERMINALS
7 AND 9 ARE COMMON. ENSURE
THAT 7 AND 9 ARE CONNECTED
TO RC AT THE ZONE BOARD.
HHEAT
COOL
7
8
9
10

Secon 7: Field Wiring

Table of Contents

Related product manuals