EasyManua.ls Logo

Enertech AV Series - Unit Dimensional Data: MD;ME

Enertech AV Series
76 pages
Print Icon
To Next Page IconTo Next Page
To Next Page IconTo Next Page
To Previous Page IconTo Previous Page
To Previous Page IconTo Previous Page
Loading...
Enertech Global, LLC 9
AV : MD/ME - Rev. A Models
Installaon and Operaons Manual
Secon 2: Product & Unit Data
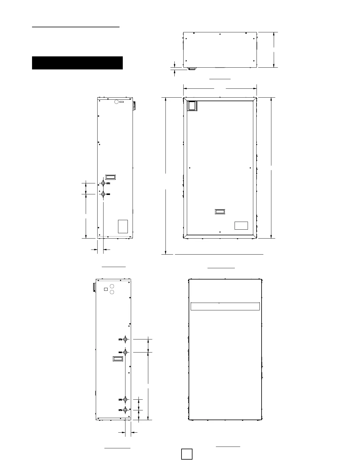
Unit Dimensional Data : MD/ME
Shipping Weight
EMD - 212 lbs
EME - 221 lbs
*All measurements are in inches.
ENERTECH GLOBAL, LLC
2506 S. ELM STREET
GREENVILLE, IL 62246
(618) 664-9010





















Table of Contents

Related product manuals