EasyManua.ls Logo

Enertech AV Series - Wiring Diagram: MD

Enertech AV Series
76 pages
Print Icon
To Next Page IconTo Next Page
To Next Page IconTo Next Page
To Previous Page IconTo Previous Page
To Previous Page IconTo Previous Page
Loading...
Enertech Global, LLC 49
AV : MD/ME - Rev. A Models
Installaon and Operaons Manual
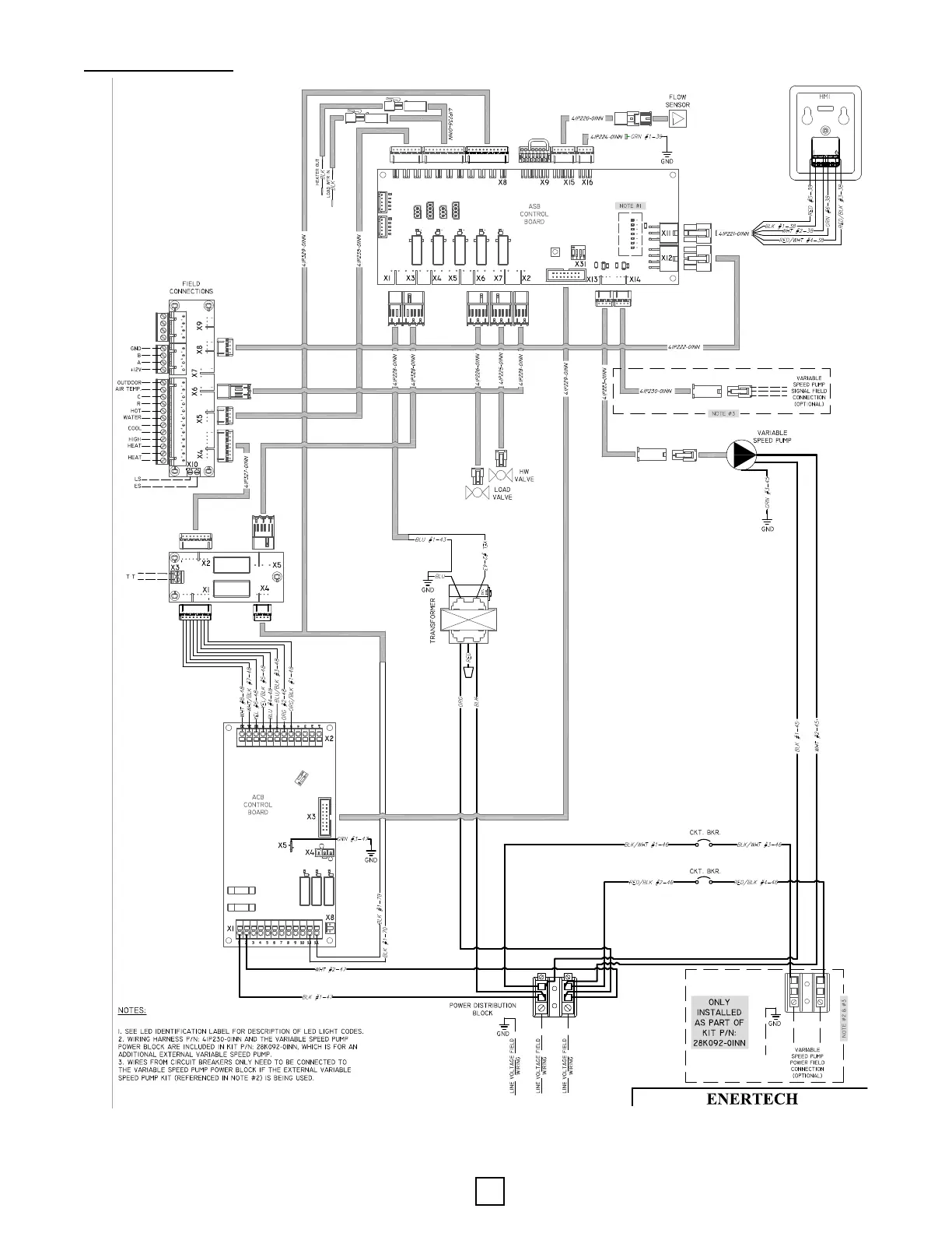
Wiring Diagram : MD
Secon 8: Controls

Table of Contents

Related product manuals